Essenzialità creativa che ridisegna lo spazio
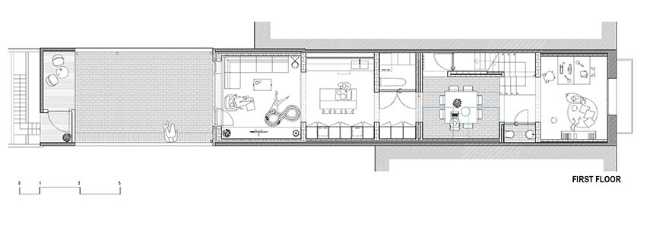
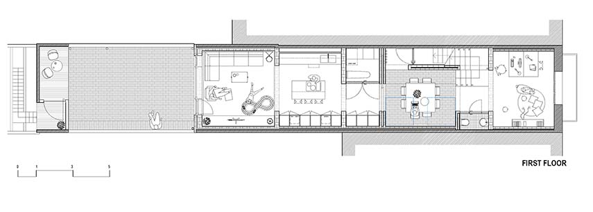
Casa Mariela ha preso vita grazie al progetto di Viva - Casas Sostenibles, uno studio noto per la realizzazione di progetti di architettura sostenibile e innovativa. Il budget limitato ha influenzato le scelte progettuali, portando all'eliminazione di pareti interne e rivestimenti superflui. La pianta stretta e lunga del lotto ha spinto i progettisti a immaginare la casa come una rete di spazi interconnessi, privi di corridoi e porte. I servizi essenziali, come i bagni e la cucina, sono stati collocati lungo le pareti laterali, creando uno spazio centrale aperto che ridefinisce la percezione degli ambienti domestici.























