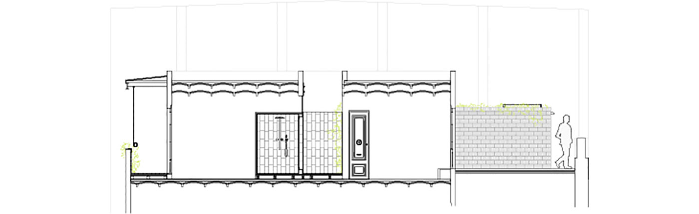
Agora Arquitectura abordó el proyecto de recuperación de la Casa Masnou con la voluntad de liberar y devolver al interior los preciosos y actualmente incoherentes espacios exteriores. El piso de 40 metros cuadrados, tal y como está, no tiene acceso directo a la terraza sur, el patio central está inutilizado y la terraza trasera está cerrada por ventanas añadidas en épocas anteriores


Flotando sobre los tejados de Barcelona entre luz y aire en las terrazas liberadas de la Casa Masnou
La Casa Masnou es el resultado de un proyecto de recuperación de un ático en un edificio de finales del siglo XIX en el barrio de Sants; una vivienda con dos terrazas y un patio central que con el paso de los años se había separado de la vivienda y desvirtuado su función de espacio abierto para ser disfrutado
- #Europa>
- #España>
- #Arquitectura>
- #Recuperación del edificio>
- #Residencia>
- #Atico>
- #Madera>
- #Cerámica>
- #Yeso>
- #Renovacion>

La casa está asfixiada y privada de la riqueza de aire y luz que su forma estructural podría permitir. El proyecto de Agorà Arquitectura reabre la casa al exterior: dos ventanas de la terraza sur se convierten en puertas francesas, creando una conexión directa con esta renovada zona de estar exterior, que contiene una zona de barbacoa, un trastero y una cubierta de sombra proporcionada por plantas trepadoras; la terraza norte se abre completamente y se despeja el patio

Así, la casa vuelve a flotar entre dos espacios exteriores, quizá por primera vez en conexión directa con el interior. Como resultado, el patio central revela su significado, liberado del desorden que lo obstruía, trascendiendo su funcionalidad: ahora no sólo la casa se extiende entre las dos terrazas, sino que cada una de sus habitaciones lo hace entre dos espacios exteriores, reproduciendo a menor escala lo que sucede en un orden superior

Estos nuevos diálogos espaciales se suman al diseño del aspecto material y a la nueva organización del espacio: las primeras demoliciones dejaron al descubierto algunos suelos preciosos que fueron recuperados y reubicados según la nueva distribución. En el centro del espacio hay un volumen de abeto que contiene las zonas húmedas, separando los sectores público y privado y permitiendo la libre circulación en las salas

Galeria
Créditos Fotográficos: Joan Casals Pañella
Diseños: Agorà Arquitectura

















