Agora Arquitectura approaches the renovation project of Casa Masnou with the intention of freeing and restoring to the interior the precious and currently the inconsistent outdoor spaces. The 40m² apartment as it stands has no direct access to the south terrace, the central patio is unusable and the back terrace is closed by windows added in previous times


Hovering over the rooftops of Barcelona between the sunshine and the fresh air of the Casa Masnou vacant terraces
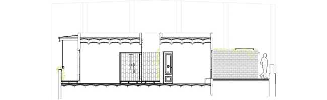
Casa Masnou is the result of a renovation project of an attic in a late 19th century building in the Sants district; a house with two terraces and a central patio that over the years had been separated from the dwelling and altered from its function as an open space which could be enjoyed
- #Europe>
- #Spain>
- #Architectures>
- #Building recovery>
- #Residence>
- #Penthouse>
- #Wood>
- #Ceramic>
- #Plaster>
- #Renovation>

The house is suffocated and deprived of the richness of air and light which it would potentially have thanks to its structural design. Agorà Arquitectura's project reopens the house towards the outside: 2 windows on the south terrace are transformed into French doors creating a direct connection to this renewed outdoor living, where a barbecue area, a storage room and a shading cover provided by the climbing plants are located; the north terrace is completely opened and the patio is cleared

The house therefore floats between two outdoor spaces, and perhaps for the first time is directly connected to the interior. As a consequence the central patio reveals its true meaning, freed from the clutter that clogged it, it reveals its functionality: now not only does the house extend between the two terraces, but each of its rooms does so between two external spaces, thus reproducing on a smaller scale what is taking place in a higher order

These new spatial channels are added to the design of the material features and to the new organization of the space: the first demolitions revealed some precious floors that have been recovered and dislocated according to the new layout. In the middle of the area, on the other hand, there is a fir tree containing the wetlands, separating the public from the private area, and allowing a free movement in the rooms

Gallery
Photo credits: Joan Casals Pañella
Drawings: Agorà Arquitectura

















