El diseño de interiores de Goko Studio articula todo el espacio en la planta inferior como una gran habitación con la función de sala de estar y oficina, directamente conectada con la cocina; esta habitación puede convertirse en una habitación de invitados si es necesario con tan solo un par de movimientos del mobiliario diseñado a medida


Ático entre terrazas y cúpulas. Proyecto de interiores que busca la armonía perfecta entre el alma del lugar y sus habitantes
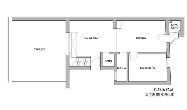
Un espacio de solo 50 metros cuadrados pero rodeado casi por completo de terrazas a dos niveles que ofrecen una vista espectacular de las cúpulas del casco antiguo de Barcelona: un ático entre terrazas y cúpulas
- #Europa>
- #España>
- #Arquitectura>
- #Recuperación del edificio>
- #Residencia>
- #Atico>
- #Remodelación>
- #Interior>
- #Diseño>
- #Diseño de interiores>

En la planta superior, un dormitorio con "pretensiones" de suite da a una terraza con una exposición óptima y rodeada de plantas. Gracias a las dos grandes terrazas, en ambas plantas es posible disfrutar del buen clima de Barcelona, ampliando la percepción del relativamente pequeño espacio interior. En la planta superior no se percibe el ritmo frenético de la ciudad llena de discotecas y turistas y la ventilación cruzada aporta un confort inusual en el centro de Barcelona

El diseño del ático se basa en la búsqueda constante de los arquitectos para lograr una armonía perfecta entre el alma del lugar y sus habitantes; con esto en mente, el espacio se convierte en un lienzo en blanco donde algunas paredes permanecen desnudas, mientras que otros detalles recuerdan la antigüedad del edificio y las diversas funciones por las que ha pasado

El moodboard del proyecto se completa con grises que a veces se tornan azules y toques de madera natural que aportan cálidos destellos de luz

Galeria
Créditos Fotográficos
Imagen de portada, imágenes artículo y gallery: Valentin Hincû
Diseños: Goko Studio

















