

Recupero nel cunese. Ex-cascinale frazionato nel rispetto della tradizione architettonica
L'Architetto Alessandro Bianchi recupera, a Fossano in provincia di Cuneo, un cascinale. Il suo progetto prevede il frazionamento della proprietà in due abitazioni distinte con piscina e parco verde condiviso
- #Europa>
- #Italia>
- #Villa>
- #Recuperación del edificio>
- #Madera>
- #Yeso>
- #Piedra>
- #Architectures>
- #Renovacion>
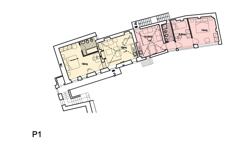
Lo Studio Bianchi cura il progetto preliminare, definitivo, esecutivo, la direzione lavori ed il coordinamento della sicurezza per un intervento di ristrutturazione e frazionamento di un villino residenziale, prima cascina padronale, immerso nel verde sulle colline immediatamente adiacenti l'abitato di Fossano in provincia di Cune

La soluzione progettuale ha previsto la realizzazione di 2 nuove unità abitative, indipendenti fra loro, ricavate da un volume complessivo preesistente

Lo studio di progettazione si è occupato anche della realizzazione di una piscina condominiale, sistemazione completa delle pavimentazioni e degli arredi esterni per le aree di pertinenza a ciascun appartamento ed i parcheggi ricavati all’interno del parco privato

L’intervento ha previsto finiture e componentistica di alto livello, in rigoroso rispetto delle tradizioni storiche ed architettoniche locali


















