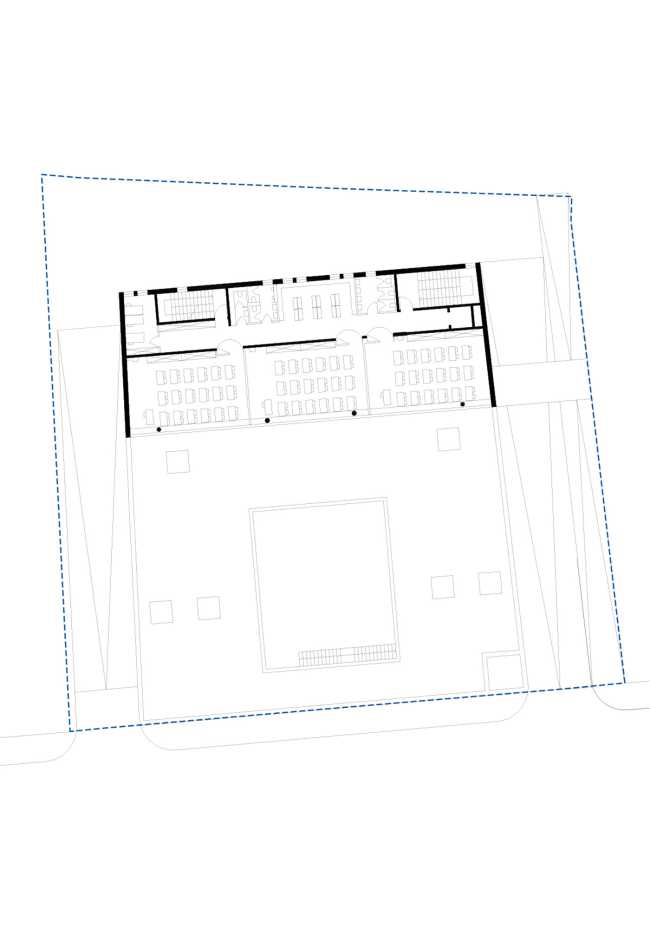
El estudio PROARH, con el fin de lograr las condiciones óptimas para los dos contenidos educativos de la escuela Priko Vode, aleja en su diseño el volumen edificado de la calle, abriendo así espacio para un semisótano en el que se ubica la guardería y jardín de infancia, orientados hacia la entrada dedicada a ellos. Con la adición de la zona de juegos necesaria y algunas plantas visualmente atractivas en el tejado, la guardería y la escuela quedan así indirectamente separadas aunque sigan formando parte del mismo volumen


Escuela primaria e infantil Priko Vode. Una inusual combinación de contenidos educativos
El reto del proyecto de la escuela Priko Vode de Solin, en Croacia, consistía en unir en una misma estructura una escuela primaria y una infantil que, aunque similares en cuanto a su finalidad, no solo difieren en su uso y carácter, sino que también se limitan mutuamente
- #Europa>
- #Croacia>
- #Arquitectura>
- #Nueva construccion>
- #Educación>
- #Preescolar>
- #Escuela primaria>
- #Metal>
- #Cemento>
- #Arquitectura>

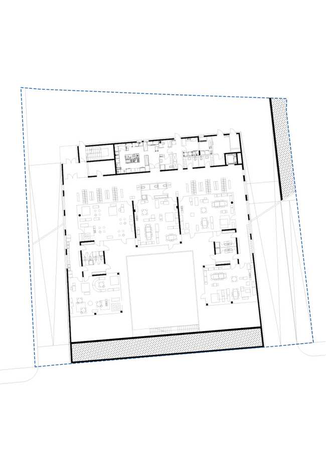
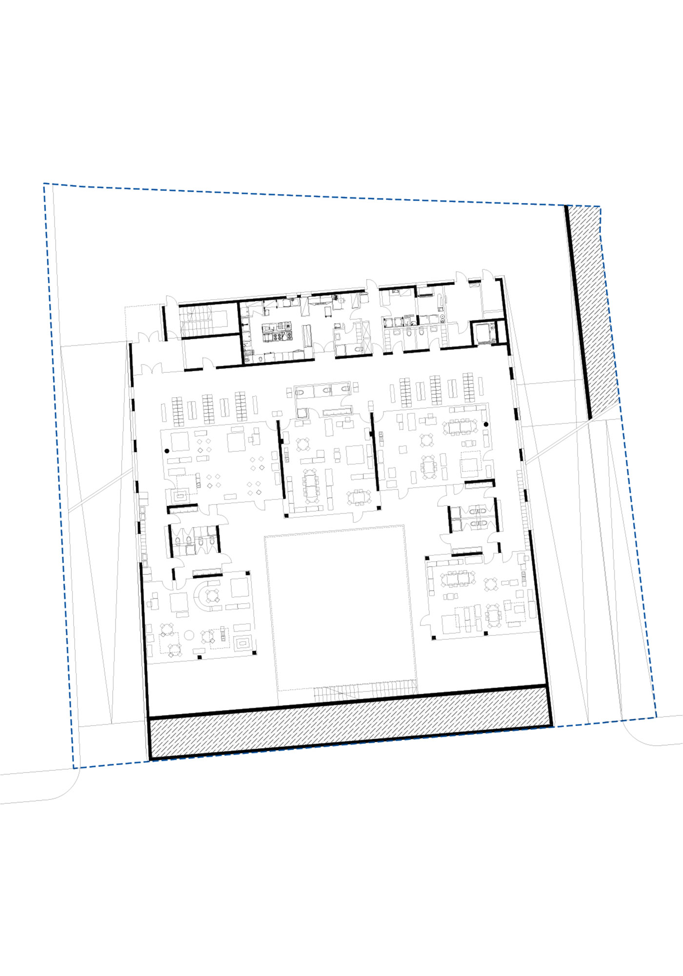
De este modo, los espacios de la escuela infantil y de la primaria se sitúan uno encima del otro, orientados al sur y con vistas al jardín mediterráneo sobre el techo. En cuanto a la forma, el objeto arquitectónico es un simple paralelepípedo dividido horizontalmente de modo que sus partes, ahora separadas, formen ángulos rectos, siguiendo así el concepto de separación física acentuada de los contenidos dentro del volumen

Este volumen, de carácter muy estático, se suaviza con la elección del material de la fachada: la chapa perforada blanca aporta ligereza y suavidad a las superficies y suaviza el volumen dominante

El diseño de Priko Vode muestra una interesante exploración de los requisitos y las limitaciones, impulsada por el deseo de crear un espacio de calidad para ambos programas educativos, que deben funcionar perfectamente juntos, aunque estén separados entre sí

Galeria
Créditos Fotográficos
Imagen de portada, imágenes artículo y gallery: Damir Fabijanic, Davor Matekovic
Diseños: PROARH












