Lo studio PROARH, al fine di ottenere le condizioni ottimali per entrambi i contenuti educativi della scuola Priko Vode, allontana nel suo progetto il volume costruito dalla strada, aprendo così lo spazio per un piano semi-interrato sul quale sono collocati un asilo e un vivaio, orientati verso l’ingresso ad essi dedicato. Con l’aggiunta dell’area giochi necessaria e di alcune piante visivamente accattivanti sul tetto, l'asilo e la scuola sono quindi indirettamente separati anche se fanno ancora parte dello stesso volume


Scuola elementare e scuola materna Priko Vode. Un insolito mash-up di contenuti educativi
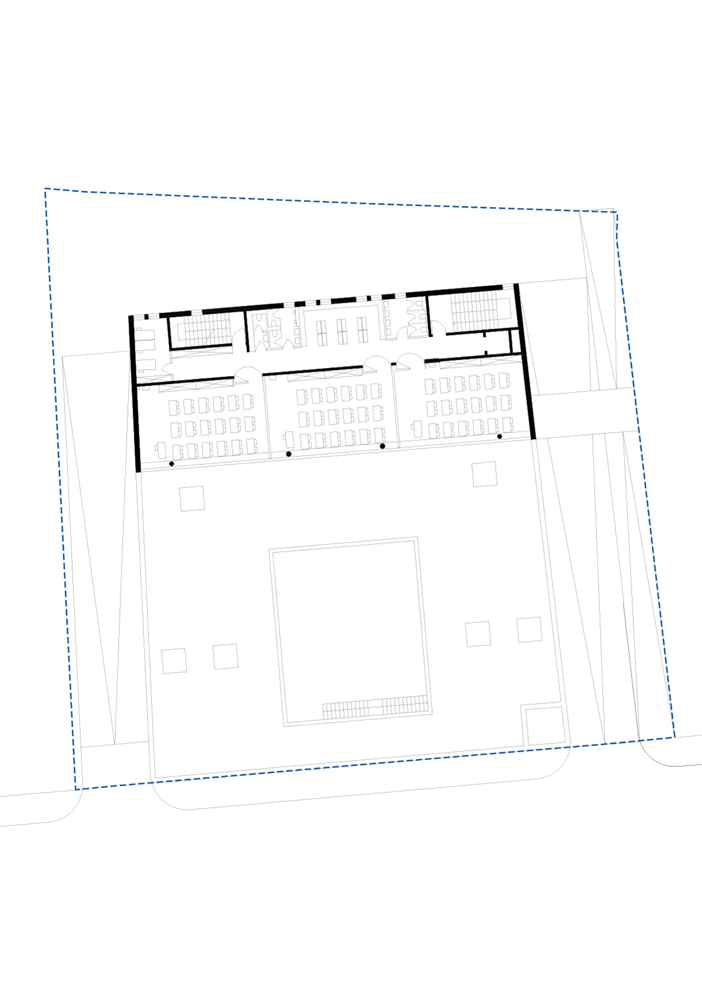
La sfida del progetto per la scuola Priko Vode a Solin, in Croazia, è stata unire nella stessa struttura sia una scuola elementare che un asilo, che sono, anche se simili in termini di scopo, non solo diversi nel loro uso e carattere, ma si limitano anche a vicenda
- #Europa>
- #Croazia>
- #Architettura>
- #Nuova costruzione>
- #Istruzione>
- #Scuola infanzia>
- #Scuola primaria (elementare)>
- #Metallo>
- #Cemento>
- #Architettura>

Gli spazi per scuola materna ed elementare si trovano così uno sopra l’altro, orientati a sud e affacciati sul giardino mediterraneo sul tetto. In termini di forma, l'oggetto architettonico è un semplice parallelepipedo diviso orizzontalmente in modo che le sue parti ora separate siano ad angolo retto, seguendo così il concetto di separazione fisica accentuata dei contenuti all'interno del volume

Questo volume, molto statico nel suo carattere, viene ammorbidito attraverso la scelta del materiale per la facciata: la lamiera forata bianca rende le superfici leggere e morbide e smorza il volume dominante

Il progetto per la Prikovode mostra un'interessante esplorazione dei requisiti e delle limitazioni guidata dal desiderio di creare uno spazio di qualità per entrambi i programmi educativi che devono funzionare perfettamente insieme, anche se separati l'uno dall'altro

Gallery
Credits foto
Immagine di copertina, immagini articolo e gallery: Damir Fabijanic, Davor Matekovic
Disegni: PROARH












