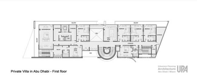
Estructura de la casa
La villa, diseñada por el estudio UPA, está ubicada en un terreno entre una carretera de alta velocidad y un estrecho tramo de mar. El frente norte de entrada desde la parte de la carretera ha sido concebido con un tratamiento semisólido para preservar la privacidad. La horizontalidad del frente ha sido equilibrada por el volumen de las escaleras con una forma de tronco de cono.























