Recuperación del edificio en via Matteotti 189. Líneas puras y frescos
Recuperación del edificio en via Matteotti 189. Líneas puras y frescos

Recuperación del edificio en via Matteotti 189. Líneas puras y frescos

En la ciudad de Locri, en el sur de Italia, el edificio en via Matteotti 189, un palacio señorial que data de 1926, está siendo recuperado respetando plenamente su identidad original: el proyecto de renovación integra nuevas funciones, creando sugerencias entre la delicadeza de lo nuevo y el resalte de los frisos históricos

Los orígenes del palacio

STUDIO PROARCH PROMENADE ARCHITECTURALE diseña la restauración de las estructuras y decoraciones originales del edificio en via Matteotti 189 y la nueva distribución de los dos pisos más el ático en los que se desarrolla el edificio. Remontándose al primer establecimiento de la ciudad, el palacio señorial ha albergado varias instituciones educativas y la residencia de los propietarios

Recuperación del edificio en via Matteotti 189. Líneas puras y frescos

Las obras de rehabilitación

El edificio tiene una estructura mixta de mampostería y hormigón armado; en la obra de rehabilitación del envolvente, los arquitectos han restaurado el estado original para reforzarlo con una malla de fibra de carbono y capas de nuevo enlucido. Se procedió a la sustitución de algunos elementos salientes peligrosos de las fachadas y a la renovación de la cubierta. Esta última, originalmente con vigas de castaño, se ha realizado con cerchas de madera laminada no empujantes y aislada con un paquete de aislamiento térmico de alto rendimiento

Recuperación del edificio en via Matteotti 189. Líneas puras y frescos

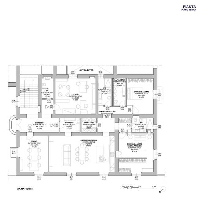
El apartamento en la planta baja

La planta baja del edificio se ha renovado por completo y se ha dedicado a residencia y estudio. La nueva distribución interna respeta la estructura original, integrada con tabiques adicionales. La antigua sala de profesores, un amplio salón con frescos, se convierte en la nueva sala de estar con cocina abierta: el fuerte contraste de las formas puras de los nuevos elementos arquitectónicos y la linealidad del mobiliario contemporáneo con la opulencia de la decoración antigua, parte de este ambiente y se convierte en el hilo conductor de toda la intervención. La vivienda se desarrolla luego con un dormitorio principal con vestidor y baño exclusivo, un segundo dormitorio y las áreas de servicio que consisten en un segundo baño, un trastero y una lavandería. En la misma planta se encuentran un estudio de 25 metros cuadrados con baño y una sala de reuniones de 17

Recuperación del edificio en via Matteotti 189. Líneas puras y frescos

Enfatizar la cromía antigua de los frescos

La cromía que caracteriza las paredes internas es única y tenue, con el objetivo de enfatizar las sombras y las luces sin ningún contraste cromático. Los tonos son claros y naturales, los espacios están iluminados por las importantes ventanas y unidos en un único lenguaje por la madera del suelo. Todos los colores utilizados retoman los tonos de los frescos para enfatizarlos. El cuidadoso proyecto de los interiores se ve coronado por el meticuloso estudio de la iluminación y los cuerpos iluminantes que crea sugerencias pensadas ad hoc y enmarca la simplicidad del lenguaje estilístico

Recuperación del edificio en via Matteotti 189. Líneas puras y frescos

Galeria