Recupero di edificio in via Matteotti 189. Linee pure e affreschi
Recupero di edificio in via Matteotti 189. Linee pure e affreschi

Recupero di edificio in via Matteotti 189. Linee pure e affreschi

Nella città di Locri in sud Italia, l’edificio in via Matteotti 189, un palazzo signorile risalente al 1926, viene recuperato nel pieno rispetto della sua identità originale: il progetto di ristrutturazione integra nuove funzioni, creando suggestioni tra la delicatezza del nuovo e il risalto dei fregi storici

Le origini del palazzo

STUDIO PROARCH PROMENADE ARCHITECTURALE progetta il recupero delle strutture e delle decorazioni originali dell’edificio in via Matteotti 189 e la nuova distribuzione dei due piani più sottotetto su cui si sviluppa il fabbricato. Risalente al primo impianto della città, il palazzo signorile ha ospitato diversi istituti scolastici e la residenza dei proprietari

Recupero di edificio in via Matteotti 189. Linee pure e affreschi

Le opere di risanamento

L’edificio presenta una struttura mista in muratura e cemento armato; nell’opera di risanamento dell’involucro, gli architetti hanno fatto ripristinare lo stato al grezzo per rinforzarlo con una rete in fibra di carbonio e successivi strati di nuovo intonaco. Si è proceduto alla sostituzione di alcuni elementi aggettanti pericolanti delle facciate e al rifacimento della copertura. Quest’ultima, in origine in travi di castagno, è stata realizzata in capriate non spingenti di legno lamellare e coibentata con un pacchetto performante di isolanti termici

Recupero di edificio in via Matteotti 189. Linee pure e affreschi

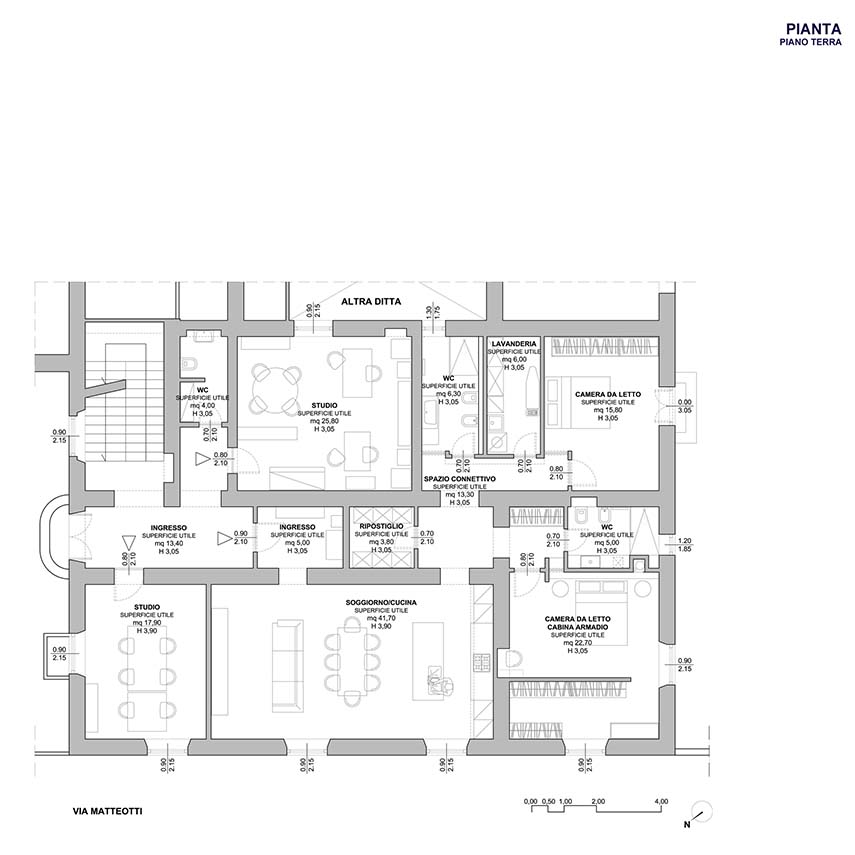
L'appartamento al piano terra

Il piano terra del palazzo viene completamente ristrutturato e dedicato a residenza e studio. La nuova distribuzione interna rispetta la struttura originale portante, integrata con tramezzi aggiuntivi. L’ex sala professori, un ampio salone affrescato, diventa il nuovo living con cucina a vista: il forte contrasto delle forme pure dei nuovi elementi architettonici e della linearità dell’arredo contemporaneo con l’opulenza della decorazione antica, parte da questo ambiente e rimane il fil rouge di tutto l’intervento. L’abitazione si sviluppa poi con una camera padronale con cabina armadi e bagno esclusivo, una seconda camera da letto e i locali di servizio consistenti in un secondo bagno, un ripostiglio e una lavanderia. Allo stesso piano trovano posto uno studio di 25 mq con bagno e una sala riunioni di 17

Recupero di edificio in via Matteotti 189. Linee pure e affreschi

Enfatizzare la cromia antica degli affreschi

La cromia che caratterizza le pareti interne è unica e tenue, nell’intento di enfatizzare le ombre e le luci al netto di ogni contrasto cromatico. I toni sono chiari e naturali, gli spazi sono illuminati dalle importanti finestre e uniti in un unico linguaggio dal legno del pavimento. Tutti i colori utilizzati riprendono i toni degli affreschi per enfatizzarli. L’accurato progetto degli interni viene coronato dal meticoloso studio dell'illuminazione e dei corpi illuminanti che crea suggestioni pensate ad hoc e incornicia la semplicità del linguaggio stilistico

Recupero di edificio in via Matteotti 189. Linee pure e affreschi

Gallery