La fachada se realizó dentro de la propia escuela. El pigmento blanco rubí de la fachada se asemeja al carácter rudimentario de las obras de arte de los estudiantes antes del acabado final, mientras que el patrón escalonado recuerda a las estanterías que contienen los objetos de cerámica


McGee Art Pavilion en Nueva York. Gran jarrón de cerámica contenedor de arte y luz
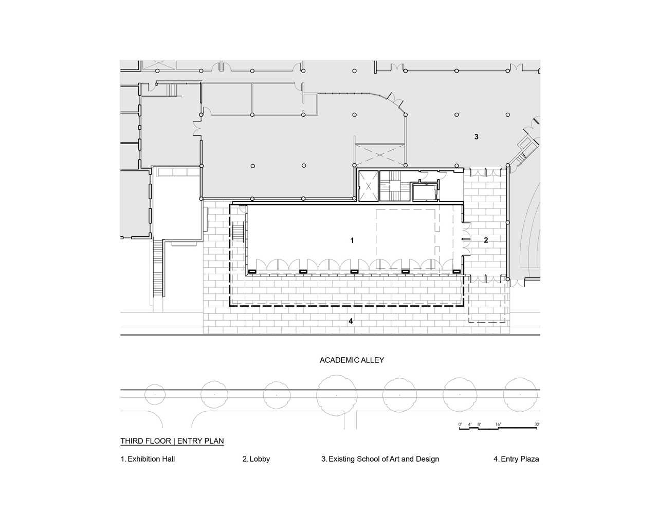
El McGee Art Pavilion es una ampliación de la Schoolof Art and Design del New York State College of Ceramics en Alfred, obra de los ikon.5architects, caracterizado por una fachada cerámica de tubos de terracota sin esmaltar y una pantalla solar y antilluvia
- #América>
- #Estados Unidos>
- #Educación>
- #Universidad>
- #Vidrio>
- #Cerámica>
- #Ampliación del edificio>
- #Arquitectura>

El pabellón está en voladizo sobre una pared de cristal, que enseña el trabajo de los estudiantes y hace que el propio pabellón parezca una obra de arte de cerámica. El espacio de exposición es amplio y flexible para poder exponer obras de arte contemporáneas. En la sala de exposiciones se halla una galería en el entresuelo que domina la perspectiva de vista de pájaro

Bajo la sala de exposiciones principal se encuentran estudios de arte, multimedia, aulas de historia del arte y espacios de apoyo, así como una galería inmersiva en la que disfrutar de más formas de arte como el vídeo y el audio

Galeria
Artìculo di Alessia Raponi
Foto credits: Brad Feinknopf
















