La facciata è stata realizzata all'interno della stessa scuola. Il pigmento bianco rubino di cui è caratterizzata la facciata è simile alla natura rudimentale delle opere d'arte degli studenti prima della finitura finale, mentre il motivo sfalsato richiama agli scaffali contenenti gli oggetti in ceramica


McGee Art Pavilion a New York. Grande vaso di ceramica contenente arte e luce
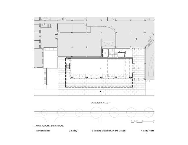
Il McGee Art Pavilion è un'espansione della School of Art and Design del New York State College of Ceramics di Alfred ad opera ikon.5 architects caratterizzato da una facciata in ceramica di tubi di terracotta non smaltati e di uno schermo solare e antipioggia
- #America>
- #Stati Uniti>
- #Istruzione>
- #Università>
- #Vetro>
- #Ceramica>
- #Ampliamento edificio>
- #Architettura>

Il paglione si trova a sbalzo su una parete di vetro, che mette in mostra i lavori degli studenti e fa sembrare il padiglione stesso un'opera d'arte di ceramica. Lo spazio espositivo è ampio e flessibile, per poter esporre opere d'arte contemporanea. Sulla sala espositiva si affaccia una galleria soppalcata per una prospettiva a volo di uccello

Sotto la sala espositiva principale ci sono studi d'arte, multimediali, aule di storia dell'arte e spazi di supporto, oltre che una galleria immersiva in cui poter godere maggiormente di forme d'arte come video e audio

Gallery
Articolo di Alessia Raponi
Foto credits: Brad Feinknopf
















