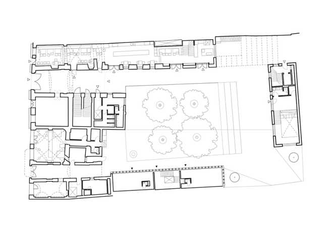
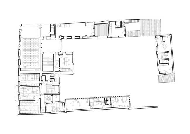
Abrazando huellas históricas
Los diseñadores de Vallo Sadovsky Architects, en la renovación del complejo de edificios en la calle Stefanikova, números 3 y 4, buscan preservar todas las huellas importantes del tiempo, cuidando el lenguaje material utilizado y respetando los principios de restauración. La historia de los edificios se remonta a la década de 1300, con intervenciones que ocurrieron desde el siglo XVI hasta el siglo XX























