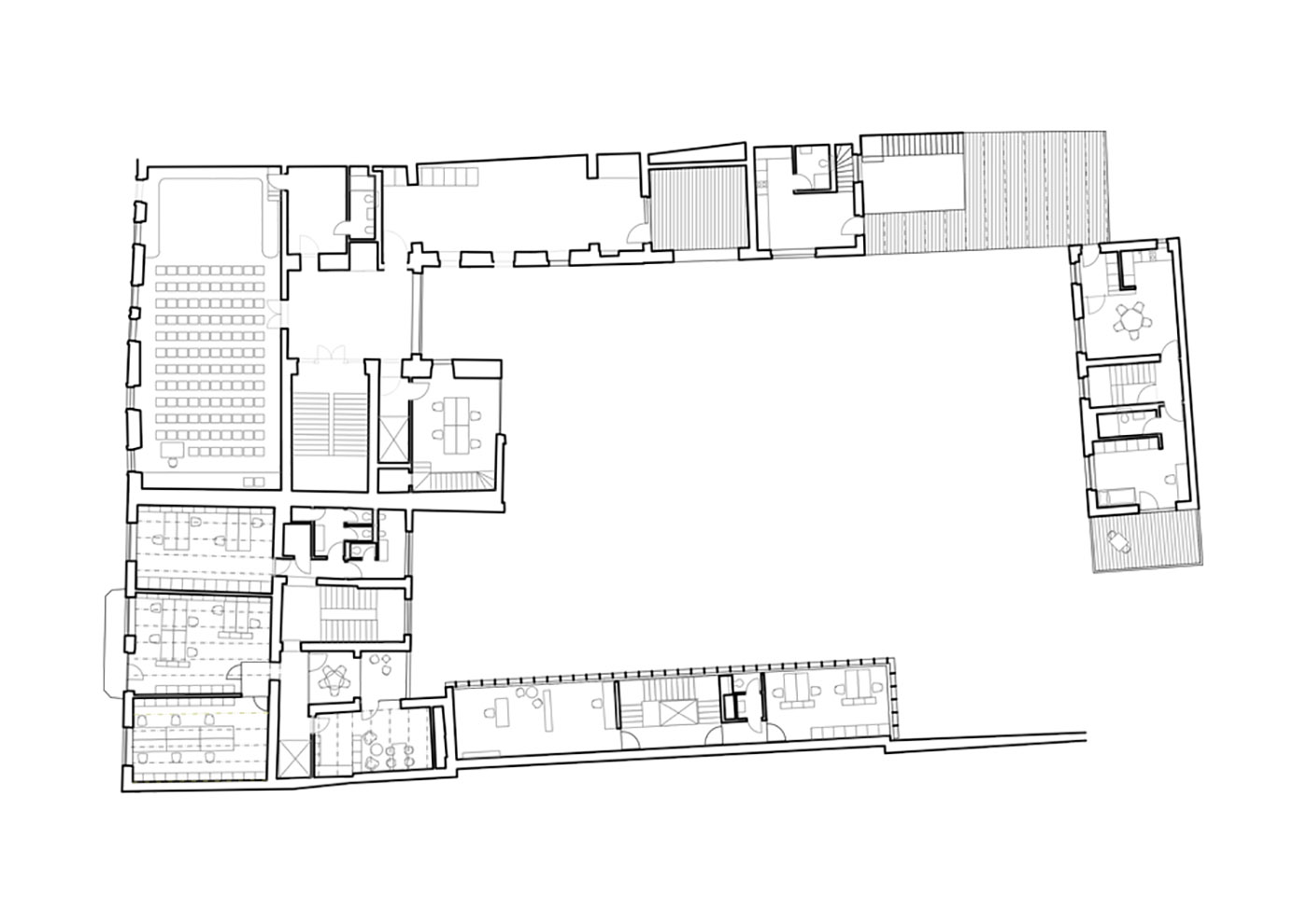
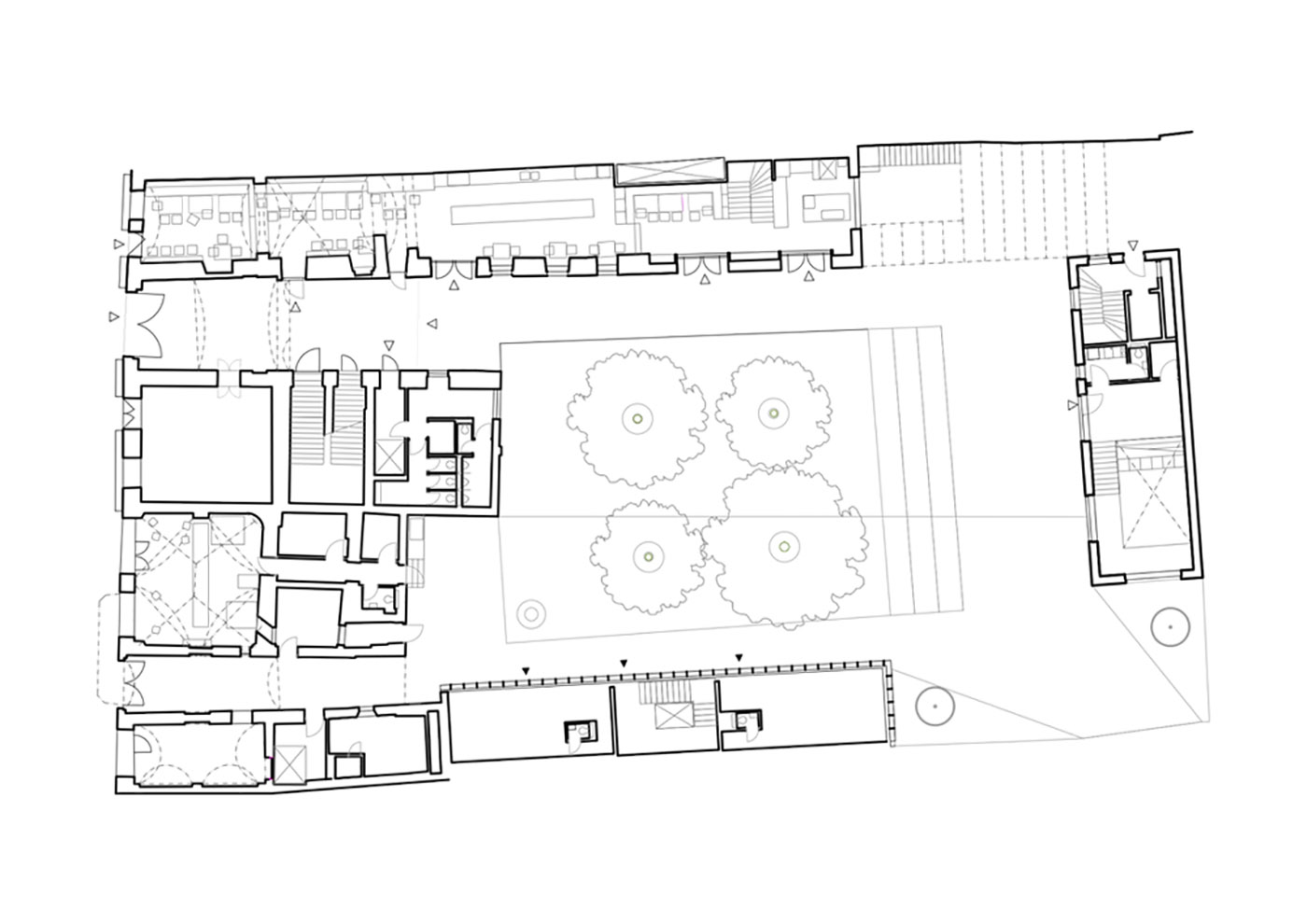
Abbracciare le tracce storiche
I progettisti dello studio Vallo Sadovsky Architects, nella ristrutturazione del complesso edilizio di via Stefanikova, nn. 3 e 4, cercano di conservare tutte le tracce importanti del tempo, curando il linguaggio materico utilizzato e rispettando i principi del restauro. La storia degli edifici risale al 1300, con interventi dal XVI al XX secolo























