Permanecer suspendidos entre el océano y la selva salvaje
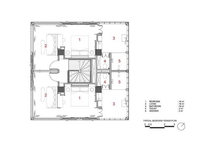
Construidas junto a altos árboles de coco, las torres de Lost Lindenberg albergan ocho suites que ofrecen vistas extraordinarias al océano y a la selva, conectadas entre sí por una pasarela elevada llamada Highline que mira hacia el mar. Alexis Dornier y Studio Jencquel, autores de proyectos de arquitectura icónicos, concibieron el hotel con el objetivo de "dar la sensación de caminar en un mundo diferente, de descansar en un barco flotante, elevado y seguro, con la selva salvaje a las puertas". Agrupadas juntas, las torres forman un pueblo entre los árboles, una pequeña ciudad flotante.























