Stay suspended between ocean and wild jungle
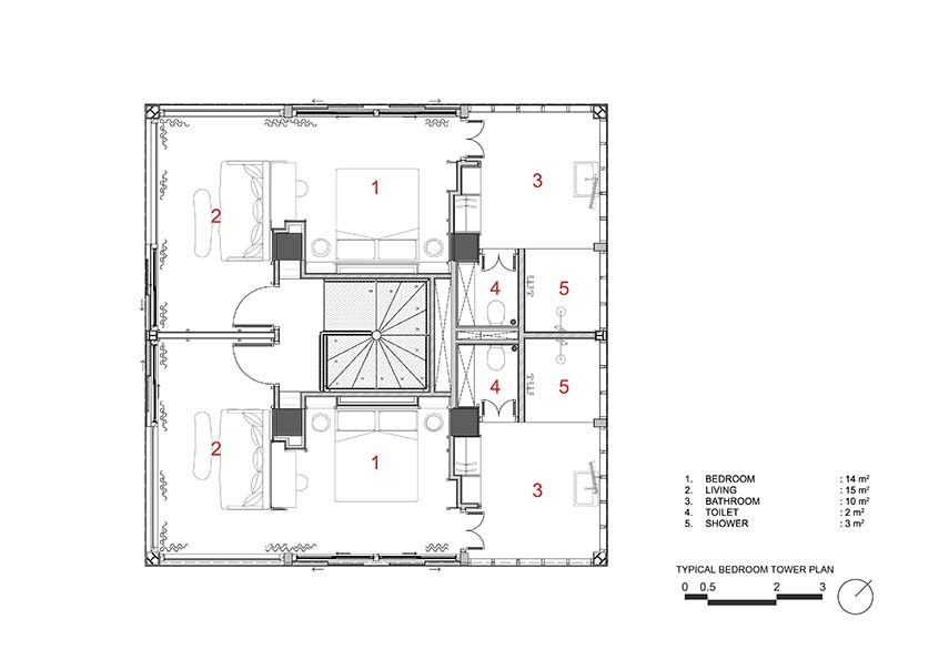
Built next to tall coconut trees, the towers of Lost Lindenberg host eight suites that offer extraordinary views of the ocean and the jungle and are connected to each other by a so-called Highline: an elevated walkway facing the sea. Alexis Dornier and Studio Jencquel, authors of iconic architectural projects, conceived the hotel with the aim of "giving the sensation of walking in a different world, of resting on a floating ship, elevated and safe, with the wild jungle at the doorstep." Grouped together, the towers form a village among the trees, a small floating city.























