

Polo scolastico in Svizzera. Nuovi volumi per un insieme unitario
“Collegamento” e “definizione” le parole chiave del team di progettazione composto dagli Architetti: Valeria Bellora, Tomas Caloprisco, Lorenzo Guzzini, e Andrea Molteni che insieme progettano l'ampliamento della Scuola
- #Europa>
- #Suiza>
- #Preescolar>
- #Ampliación del edificio>
- #Madera>
- #Architectures>
- #Arquitectura>
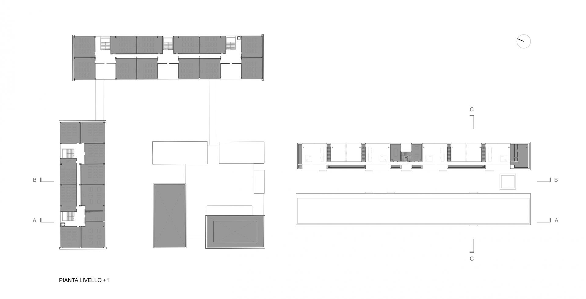
Il primo obiettivo del progetto è quello di inserire i volumi richiesti dal programma in una logica di definizione spaziale per la creazione di un polo scolastico unitario. Le parole chiave sono “collegamento” e “definizione”

La proposta per la nuova Scuola dell’infanzia e per l'ampliamento della Scuola media sono due edifici lineari disposti sull'asse nord-ovest/sud-est; il loro posizionamento gerarchizza gli spazi esterni e ordina i percorsi all'interno dell'intero polo scolastico, formano tra loro un grande vuoto rettilineo, in parte coperto, che collega gli attuali complessi della Scuola Media e della Scuola Elementare

Questo nuovo asse mette in relazione l’esistente “Via delle scuole” ad una nuova piazza con un grande albero centrale, snodo distributivo dell'intero polo scolastico e luogo di sosta per chi arriva dalla nuova pista ciclabile che collega la scuola al paese

Perseguendo il fine di creare un comparto scolastico unitario anche nel linguaggio architettonico, si sono studiate e reinterpretate le caratteristiche tipologiche e volumetriche delle scuole esistenti

I nuovi edifici sono stati lavorati secondo la logica della sottrazione creando così un ritmo alternato di pieni e vuoti in maniera tale da garantire l’attraversabilità degli stessi sia visivamente che fisicamente mettendo sempre in relazione i diversi spazi esterni















