El cliente pidió al estudio Mei Architects and Planners la construcción de un puente de conexión. El desafío es complejo debido a la dificultad de colmar el desnivel, a los requerimientos técnicos de conexión y a la necesidad de privacidad


Conexión entre residencias en Holanda. Nuevos materiales refuerzan los existentes
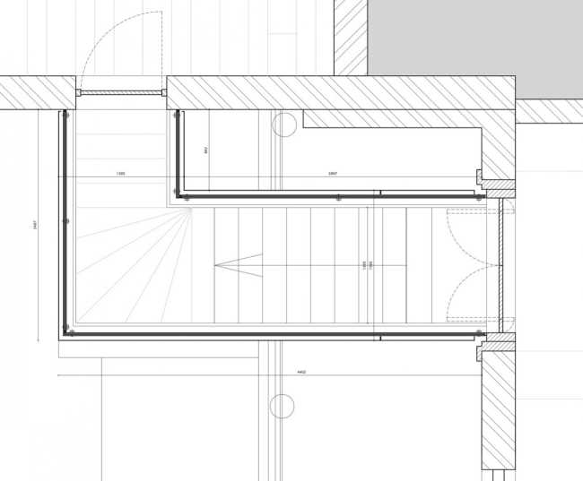
Los arquitectos del estudio Mei Architects and Planners realizan una conexión al piso superior de un edificio histórico en Lange Nieuwstraat en Schiedam con un almacén monumental comprado por el mismo cliente Van Stigt Thans
- #Europa>
- #Países Bajos>
- #Vivienda>
- #Ampliación del edificio>
- #Metal>
- #Madera>
- #Architectures>
- #Arquitectura>

La propuesta de diseño fue inmediatamente aceptada con entusiasmo por la comisión municipal para los nuevos permisos de construcción requeridos en edificios históricos y monumentales, precisamente porque Mei articuló bien la expansión, colocándola como una nueva estratificación arquitectónica de la época

La solución encontrada no implicaba repetir una nueva conexión acristalada sino proponer una 'nube' blanca. El nuevo puente, una estructura de acero y vidrio autoportante, se enfrenta a los paneles blancos de acero perforado. Los motivos abstractos en 3D, que se refieren a los adornos originales de hierro fundido de los balcones del edificio, se refinan y se incorporan a los paneles mediante prensas de goma

Para garantizar la privacidad de los ocupantes, lo que sucede adentro no se puede ver desde afuera, pero los ocupantes disfrutan de la vista que rodea el edificio

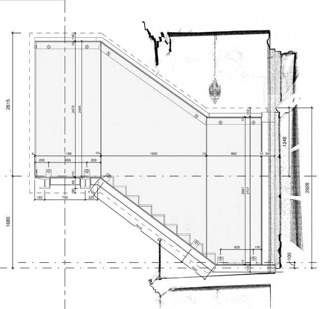
El puente es desmontable para permitir que los futuros propietarios lo eliminen si lo desean. El almacén también se puede restaurar a su estado original, porque las aberturas hechas en la fachada para albergar el puente tienen las mismas proporciones que los marcos de las ventanas originales

Los arquitectos Mei Architects and Planners han logrado fortalecer el valor de ambos edificios respetando y preservando su carácter existente












