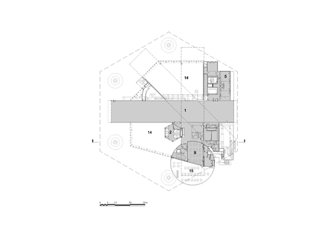
After reflecting on recent and different trends in the construction of museums around the world, from the Guggenheim Museum in Bilbao to the Tate Modern in London, Architect Shigeru Ban chooses to create a design architecture that is functional to the needs. The main galleries with different requirements for length development are based on a 15 metre wide module to create three simple rooms in the form of square tubes. The three bodies are stacked vertically and arranged around a tower with a hexagonal steel frame containing the stairs and lifts


Exhibition centre in Metz. Wooden roofing enhances the space
Architect Shigeru Ban designs the Centre Pompidou in Metz, inspired by the Chinese weave fabric of an old hat. The project is structured in simple interconnected volumes in order to create functional environments
- #L'Europe>
- #France>
- #Pavillon d'exposition>
- #Nouvelle construction>
- #Enduit>
- #Bois>
- #Métal>
- #Verre>
- #Architectures>
- #Architecture>

The main purpose of this extension to the Pompidou Centre was to show more works to the public and to exhibit large works not accessible to the Parisian museum because of the height of 5.50 meters below the beams. To meet this requirement, a ceiling height of 18 metres was maintained: the Great Nef Gallery

To establish contextual continuity with the city, the large windows at the end of the three "gallery tubes" are used to frame views of the city's monuments. Through this project, the building and the city merge. The view from the upper gallery of the tube 3 frames the Cathedral, the symbol of Metz

Another circular volume contains spaces for the presentation of shows or artistic performances with a restaurant on the upper floors and a square volume that contains an auditorium, offices and other spaces behind it. The hexagon-shaped wooden roof structure spans all the separate volumes to unify them. For the French, the hexagon is a symbol of their country because it is similar to the geographical shape of France. By creating a pattern of hexagons and triangles only four wooden elements intersect. The intersections are not made with metal joints, each element overlaps the other. This idea was born from the weave of a hat made of traditional Chinese fabric

The architect has created a grid structure with laminated wood, which can be easily bent in both directions. This led to the idea of a compressed shell structure, but equally to a mesh structure that works in traction

Another important aspect of the project is the continuation of internal and external spaces and the sequence of spaces is supported by these relationships. The space is created through the roof. In recent years, art has become more and more conceptual and has distanced itself from the public. Many people are no longer willing to pay to visit a place whose works are not comprehensible. The large volume of the forum can be accessed free of charge, people can have tea and freely enjoy the sculptures and installations and are attracted by glimpses of works of art in the galleries

The museum project is a meeting place under a large roof that is an extension of the surrounding park, the designer wanted to facilitate access by preventing the walls. The facade is composed of glass doors that can be easily removed, so that the space of the Pompidou Centre in Metz can be enjoyed in complete freedom














