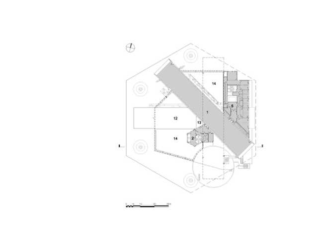
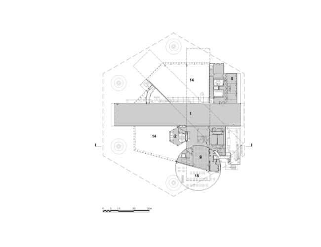
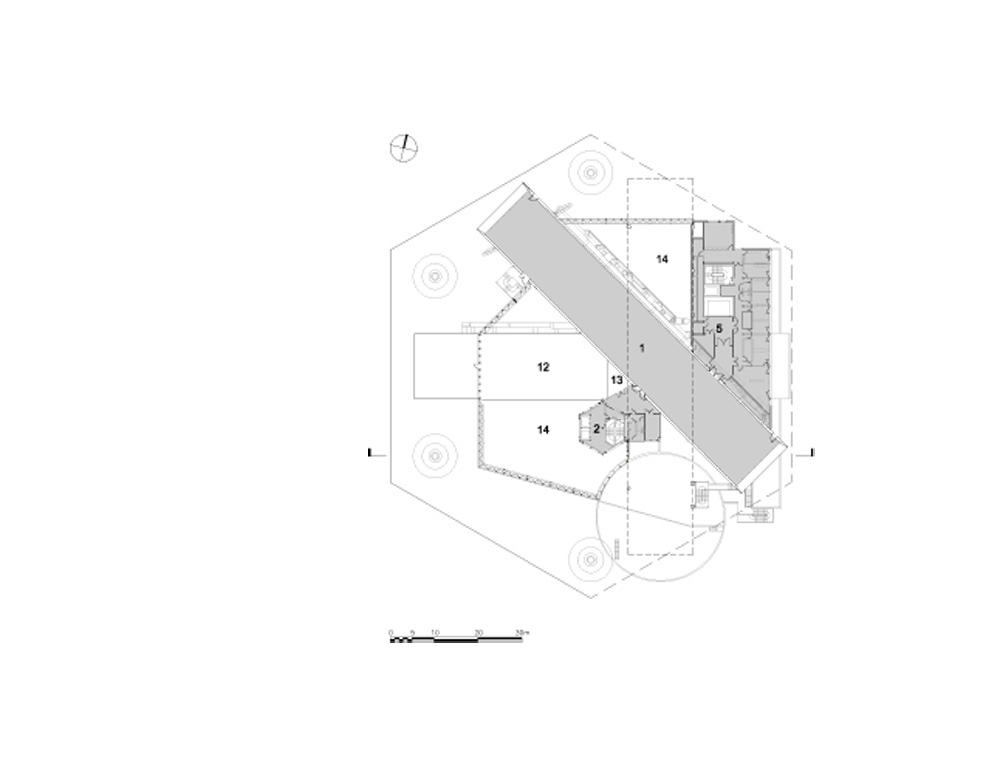
Dopo riflessioni sulle recenti e diverse tendenze di realizzazione dei musei di tutto il mondo, dal Museo Guggenheim di Bilbao alla Tate Modern di Londra, l’Architetto Shigeru Ban sceglie di creare un'architettura di design che sia funzionale alle esigenze. Le gallerie generali con diversi requisiti per gli sviluppi in lunghezza sono basate su un modulo largo 15 metri per creare tre semplici ambienti a forma di tubi quadrati. I tre corpi sono impilati verticalmente e disposti attorno ad una torre dal telaio in acciaio esagonale che contiene le scale e gli ascensori


Centro esposizioni a Metz. La copertura in legno esalta lo spazio
L’architetto Shigeru Ban progetta il Centre Pompidou a Metz ispirandosi alla trama del tessuto cinese di un vecchio cappello. Il progetto è articolato in semplici volumi interconnessi tra loro al fine di creare ambienti funzionali
- #Europa>
- #Francia>
- #Padiglione espositivo>
- #Nuova costruzione>
- #Intonaco>
- #Legno>
- #Metallo>
- #Vetro>
- #Architectures>
- #Architettura>

Lo scopo principale di questo ampliamento al Centro Pompidou è stato quello di mostrare più opere al pubblico e di esporre opere di grandi dimensioni non accessibili al museo parigino a causa dell'altezza di 5.50 metri sotto le travi. Per soddisfare questo requisito è stata mantenuta un'altezza del soffitto pari a 18 metri: la Grande Nef Gallery

Per stabilire la continuità contestuale con la città, le grandi vetrate alle estremità dei tre "tubi galleria" incorniciano viste dei monumenti della città. Attraverso questo progetto, l'edificio e la città si fondono. La vista dalla galleria superiore del tubo 3 incornicia il Duomo, simbolo di Metz

Un altro volume circolare e contiene gli spazi per la presentazione di spettacoli o performance artistiche con un ristorante ai piani superiori, e un volume di forma quadrata che contiene un auditorium, uffici e altri spazi retrostanti. La struttura del tetto in legno con forma di un esagono passa sopra tutti i volumi separati per unificarli. Per i francesi, l'esagono è un simbolo del loro paese, in quanto è simile alla forma geografica della Francia. Con la creazione di un modello di esagoni e triangoli solo quattro elementi in legno si intersecano. Le intersezioni non utilizzano giunti metallici, ogni elemento si sovrappone all'altro. Questa idea è nata dalla trama di un cappello di tessuto tradizionale cinese

L’architetto ha realizzato una struttura a griglia con legno lamellare, che può essere facilmente piegata nelle due direzioni. Nasce così l’idea di una struttura a guscio, compressa, ma anche una struttura a maglia che lavora in trazione

Un altro aspetto importante del progetto è la continuazione di spazi interni ed esterni, e la sequenza degli spazi è sostenuta da queste relazioni. Lo spazio viene realizzato grazie alla copertura. Negli ultimi anni l’arte è sempre più concettuale e si allontana dal pubblico. Molte persone non sono più disposte a pagare per visitare un luogo le cui opere non siano comprensibili. Il grande volume del forum è accessibile gratuitamente, le persone possono prendere un tè e godere liberamente delle sculture e delle installazioni, mentre sono attratti da scorci di opere d'arte nelle gallerie

Il progetto del museo è un luogo di ritrovo sotto un grande tetto che è un'estensione del parco circostante, il progettista ha voluto facilitare l’accesso evitando le pareti. La facciata è composta da ante in vetro che possono essere rimosse facilmente, facendo si che lo spazio del il Centro Pompidou a Metz possa essere fruito in piena libertà


 
                











