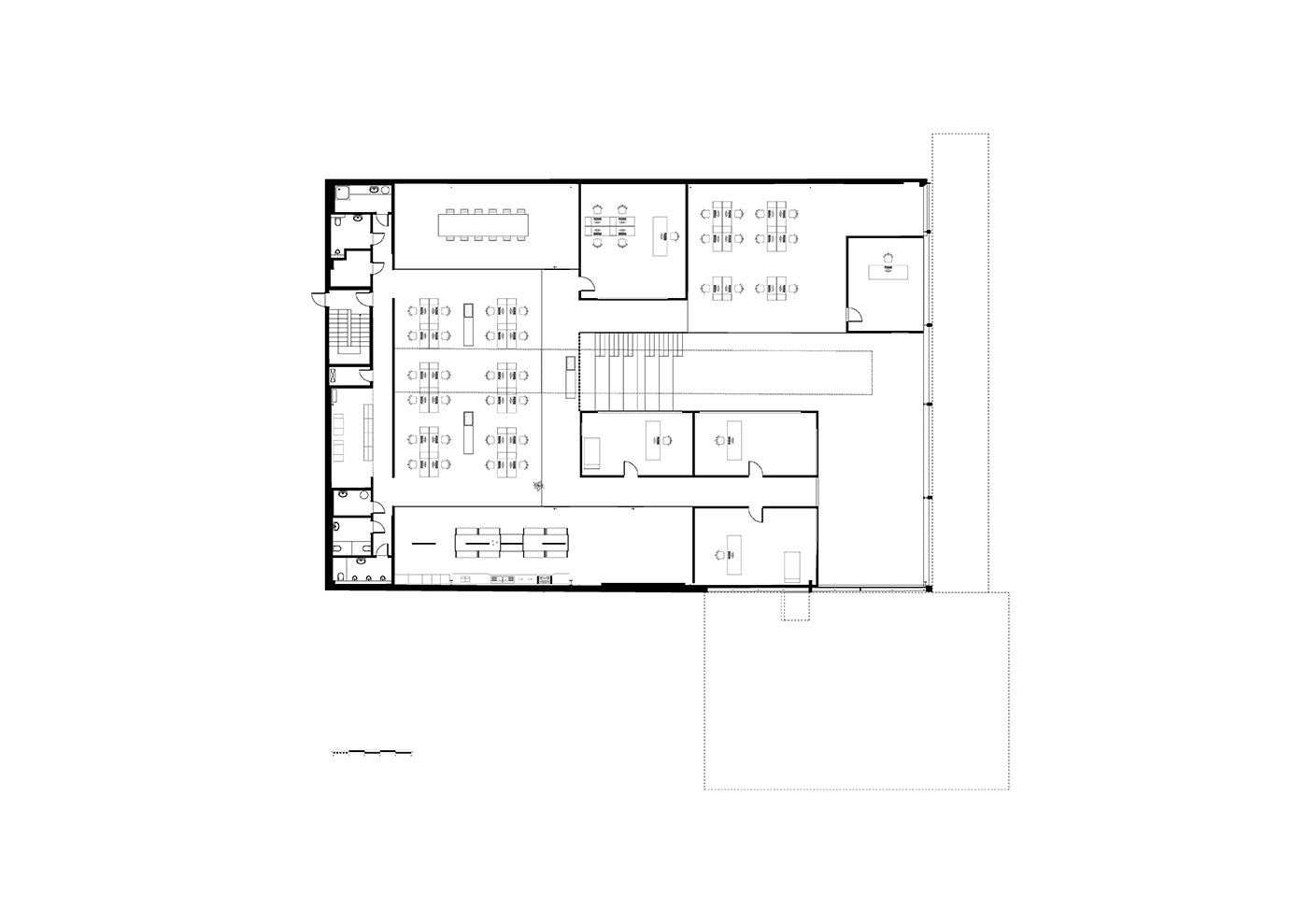
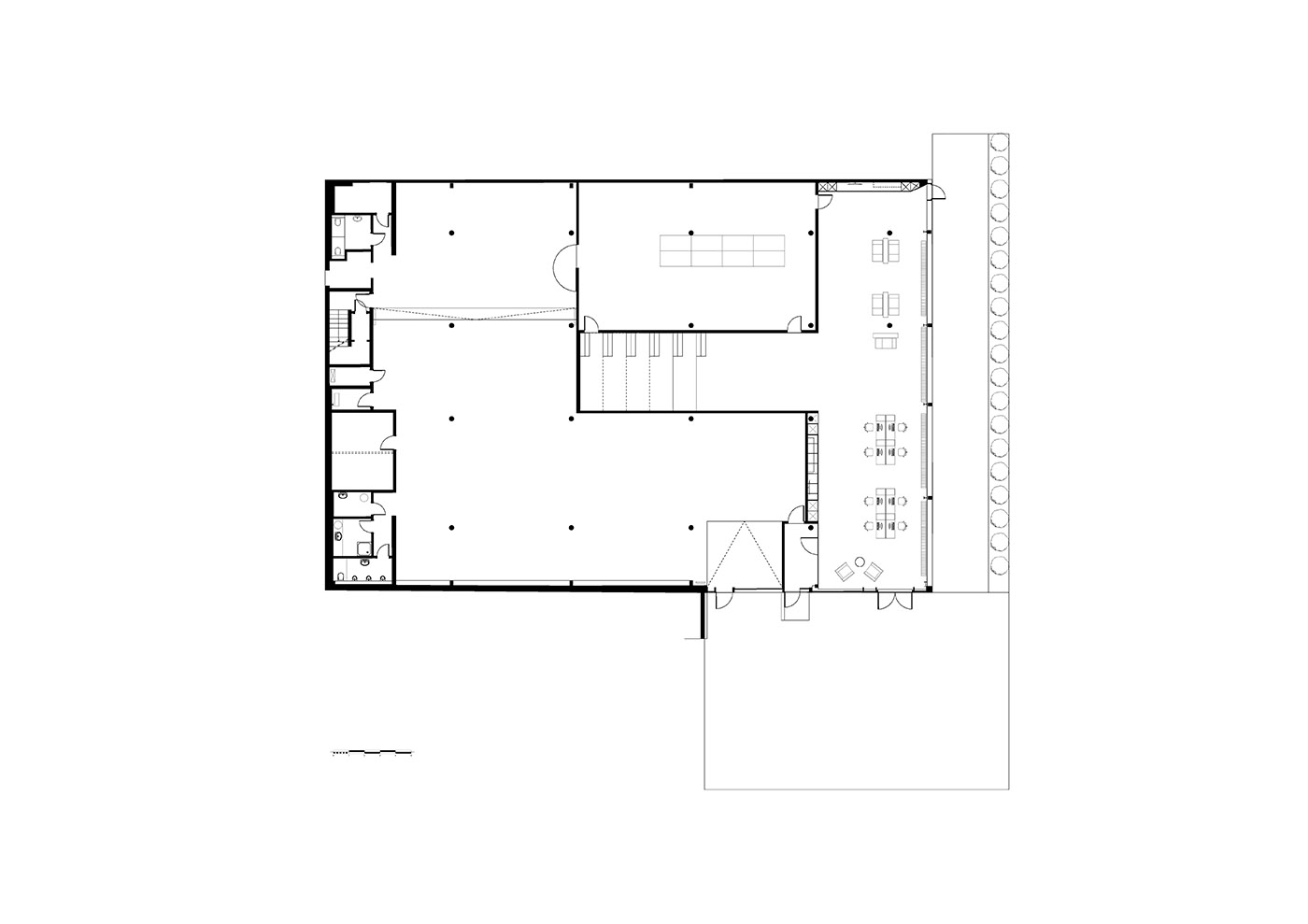
L'ancien entrepôt de Steinsel, situé à Nommern, au Luxembourg, est transformé en bureau pour une entreprise spécialisée dans les solutions informatiques. L'objectif principal du projet était de permettre à la lumière naturelle d'inonder autant que possible l'espace, tout en préservant plusieurs caractéristiques d'origine du bâtiment


Entrepôt transformé en bureau. L'espace de travail est baigné de lumière naturelle
Metamorfarchitects transforme un ancien hall d'exposition, initialement construit comme entrepôt, en un espace de travail collaboratif, positif et baigné de lumière naturelle, tout en préservant certaines caractéristiques du bâtiment d'origine
- #L'Europe>
- #Luxembourg>
- #Rénovation>
- #Offices>
- #Métal>
- #Bois>
- #Verre>
- #Enduit>
- #Architectures>
- #Renovation>

À l'entrée, vous êtes accueilli par une lumineuse zone de réception à double hauteur inondée de lumière, grâce aux grandes fenêtres et aux puits de lumière intégrés dans le toit en acier. Un escalier central en chêne, en plus de servir de liaison, crée également un espace commun, contribuant à instaurer une atmosphère informelle

La palette de matériaux est très simple : blanc pur pour les murs, poutres en acier gris, et des détails ainsi que des revêtements en chêne qui contrastent avec les parties originales de l'entrepôt. Tous les espaces sont complétés par de grandes plantes qui créent un environnement de travail relaxant et accueillant

Gallery
Crédits photos
Image de couverture, images du contenu et de la galerie: Steve Troes Fotodesign













