L'ex magazzino di Steinsel situato a Nommern, in Lussemburgo, viene trasformato in un ufficio destinato ad un'azienda specializzata in soluzioni IT. Il brief principale del progetto era quello di favorire l'ingresso di più luce naturale possibile, preservando allo stesso tempo diverse caratteristiche originarie dell'edificio


Magazzino trasformato in un ufficio. Lo spazio di lavoro viene innondato di luce naturale
Metamorf architects trasforma una sala espositiva trascurata, costruita originariamente come magazzino, in uno spazio di lavoro collaborativo, positivo e pieno di luce naturale, preservando alcune caratteristiche dell'edificio originario
- #Europa>
- #Lussenburgo>
- #Recupero edilizio>
- #Uffici>
- #Metallo>
- #Legno>
- #Vetro>
- #Intonaco>
- #Architectures>
- #Ristrutturazione>

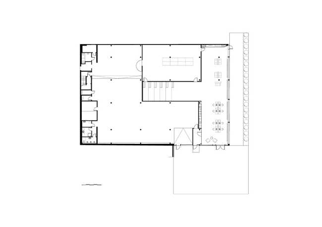
All'ingresso si viene accolti da una luminosa reception a doppia altezza innondata di luce, grazie alle grandi vetrate e ai lucernati incassati nel tetto in acciaio. Una scala centrare in rovere, oltre che a fungere da collegamento, costituisce un'area comune, contribuendo alla creazione di un ambiente informale

La tavolozza dei materiali è molto semplice: bianco pure per le pareti, travi in acciaio in grgio e dettagli e rivestimenti in rovere che contrastano con le parti originali del magazzino. Tutti gli spazi sono completati da grandi pianti che creano un ambiente di lavoro rilassante e accogliente

Gallery
Foto credits
Immagine di copertina, immagini articolo e gallery: Steve Troes Fotodesign













