Comment se présente la structure du bâtiment à rénover ?
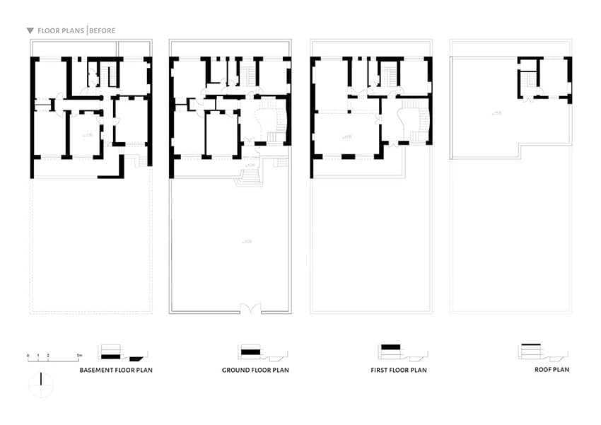
Le bâtiment faisant l'objet d'une requalification a été conçu par l'architecte Paknia. La structure du bâtiment repose sur des murs porteurs et la construction globale est fortement influencée dans sa forme par cette technique de construction. En conséquence, dans la conversion fonctionnelle du projet pour la Galerie Nabshi, la rigidité de la grille structurelle a introduit certains défis dans le projet d'architecture à relever à travers la conception.
















