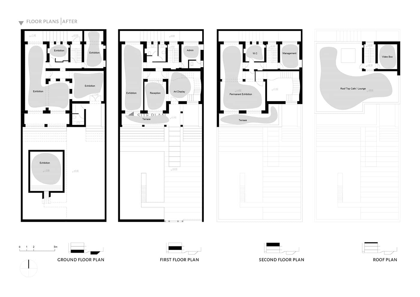
How does the structure of the building to be renovated appear?
The property subject to redevelopment was designed by architect Paknia. The building's structure is based on load-bearing walls, and the overall construction is heavily influenced in its form by this construction technique. As such, in the functional conversion of the project for the Nabshi Gallery, the rigidity of the structural grid has introduced some challenges in the architectural design project to be addressed through design.
















