Architecture comme dispensatrice de bien-être
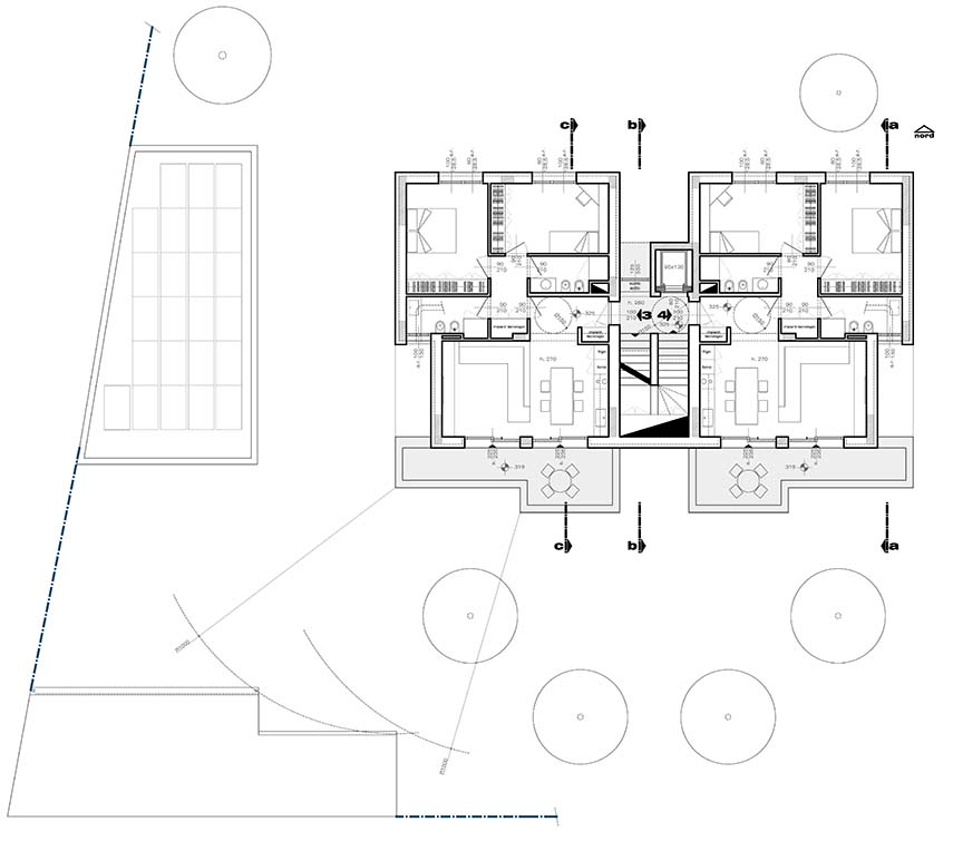
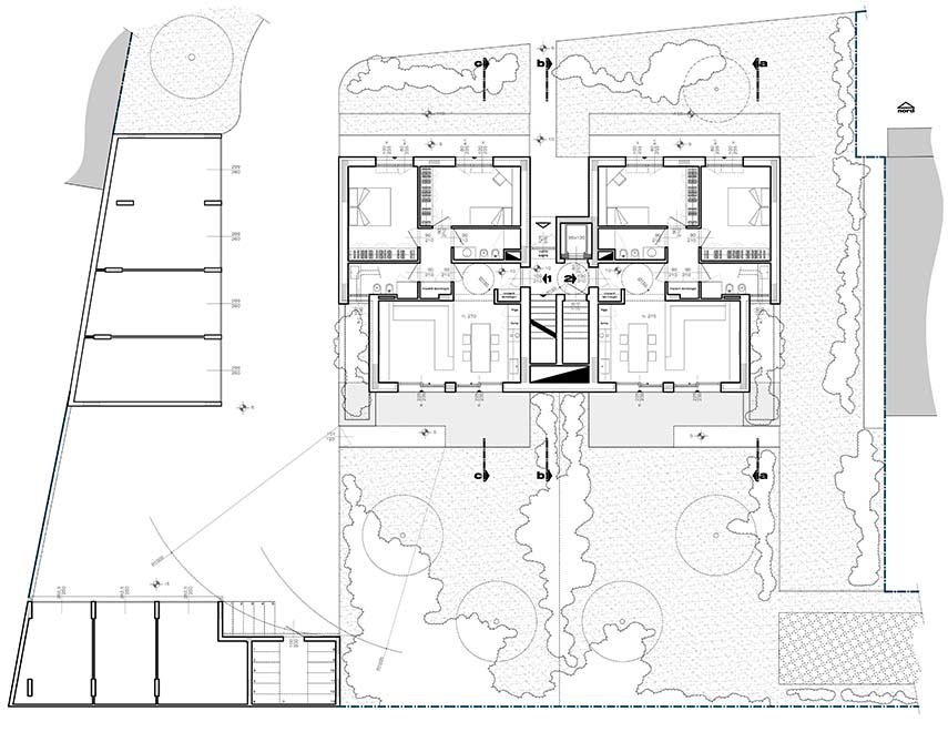
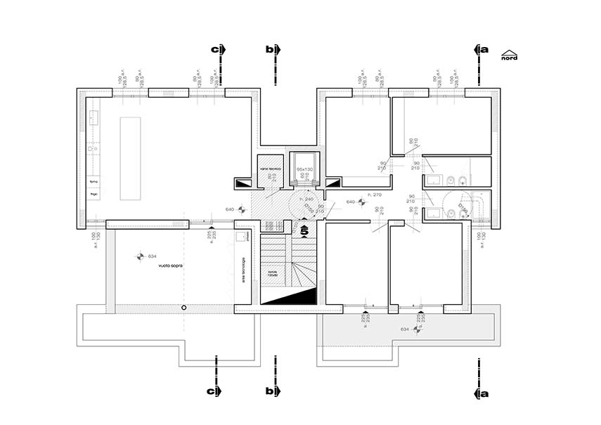
Commencé en 2019 et terminé en 2024, le bâtiment de la via di Corticella est l'un des projets d'architecture réalisés par le cabinet professionnel d'Andrea Trebbi. L'architecte, qui croit en une architecture comme dispensatrice de bien-être pour ses habitants, dessine ce volume pur, aux lignes essentielles et aux espaces généreux. Les larges terrasses des logements sont protégées par le profond porte-à-faux de la cinquième horizontale métallique de couverture du bâtiment






















