Architecture as a dispenser of well-being
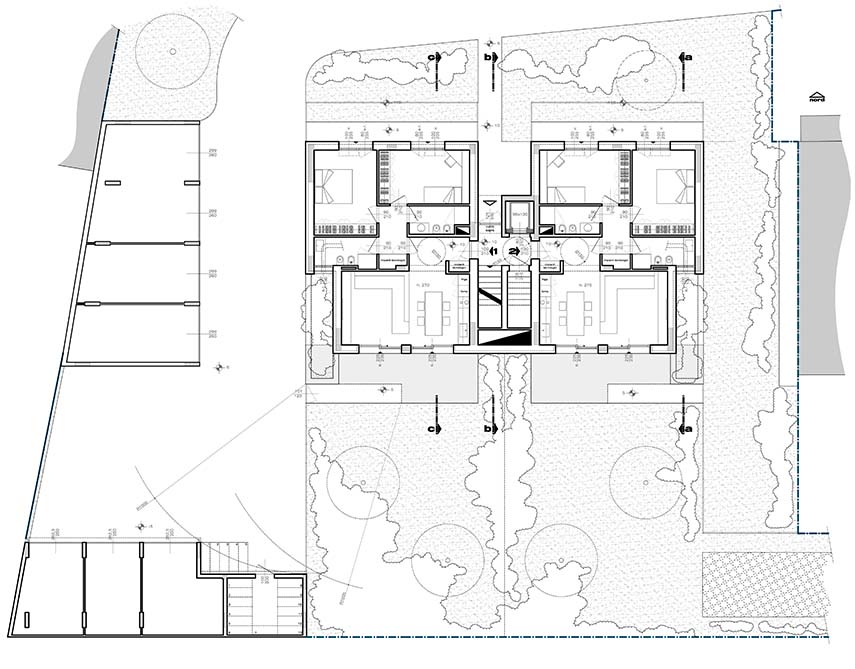
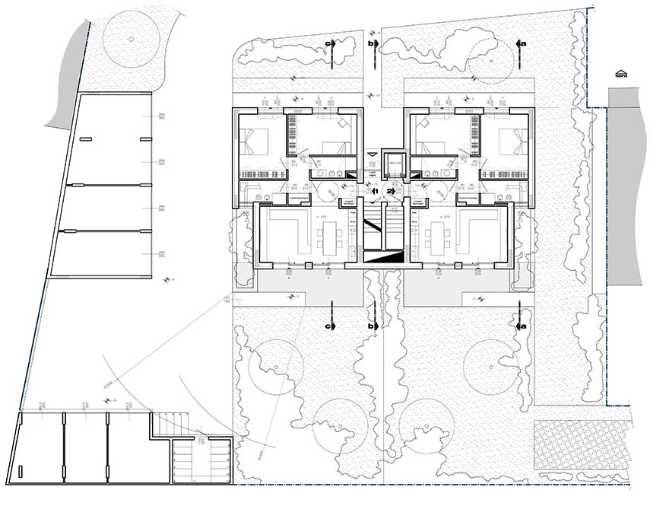
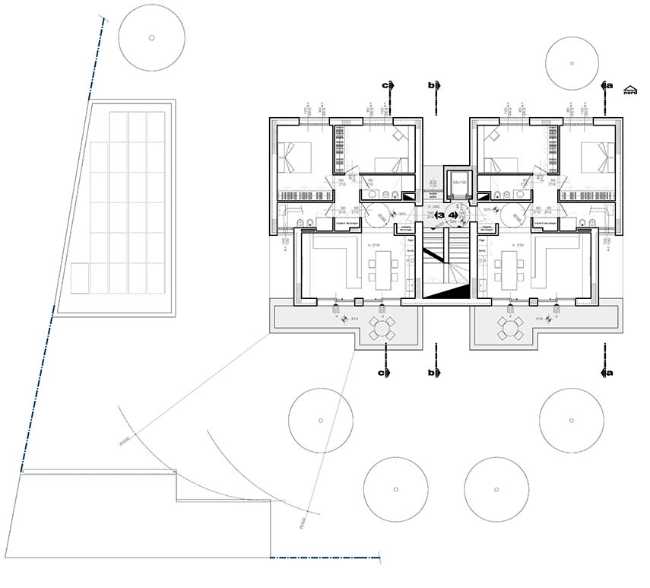
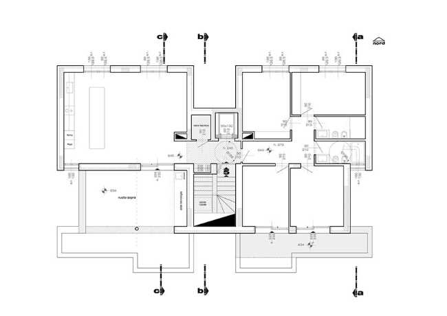
Started in 2019 and completed in 2024, the building in Via di Corticella is one of the architectural projects curated by the professional studio of Andrea Trebbi. The architect, who believes in architecture as a dispenser of well-being for its inhabitants, designs this pure volume with essential lines and generous spaces. The large terraces belonging to the apartments are protected by the deep projection of the horizontal metal fifth facade of the building






















