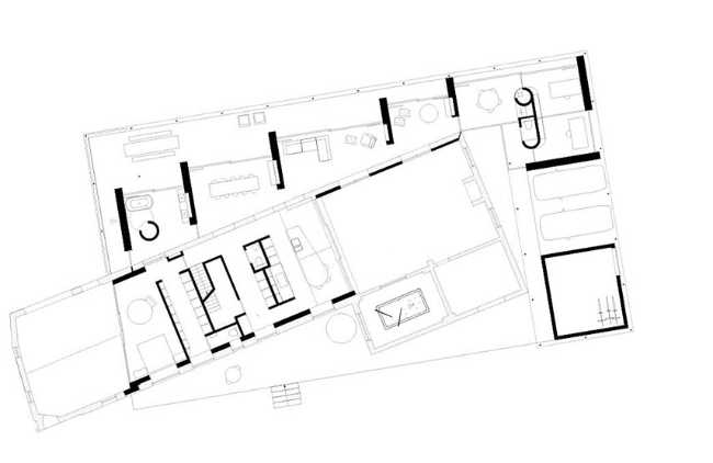
Salon transformé en patio. L'intérieur devient l'extérieur
Le cabinet d'architecture belge Objekt Architecten est chargé de la rénovation de la maison Ossel, achevée en 2024. La ferme, située sur un grand terrain, est entièrement rénovée: en conservant les ouvertures d'origine et la cheminée caractéristique, le salon est transformé en un patio. Le nouveau volume, construit contre l'arrière de la ferme, est caractérisé par de grandes baies vitrées et des murs finis en bois foncé à l'intérieur comme à l'extérieur























