Salotto trasformato in patio. Il dentro diventa il fuori
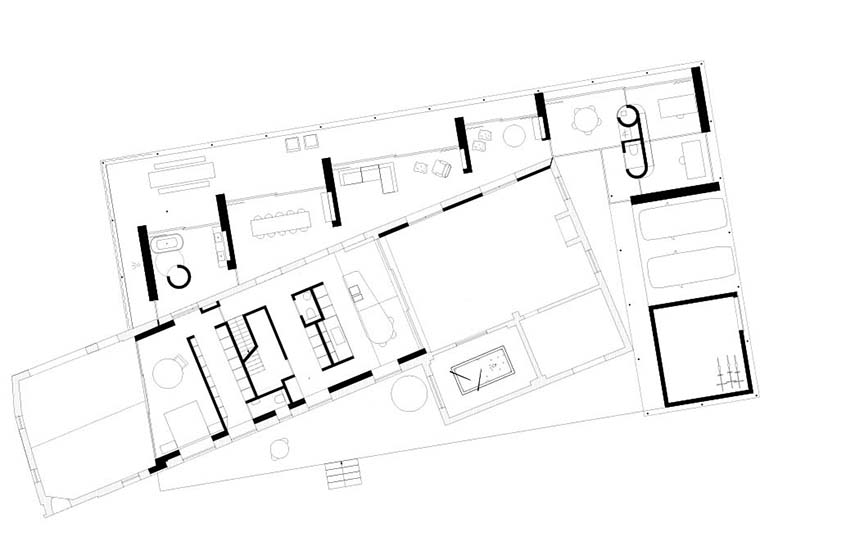
Lo studio belga Objekt Architecten viene incaricato della ristrutturazione di casa Ossel che viene terminata nel 2024. La fattoria, che sorge su un grande appezzamento di terreno, viene completamente rinnovata: mantenendone le aperture originali e il caratteristico camino il salotto viene trasformato in un patio. Il nuovo volume, costruito in aderenza alla parte posteriore del casale, è caratterizzato da grandi vetrate e dalle pareti rifinite in legno scuro sia all’interno che all’esterno

 
                





















