The ecological nature of the building designed by Stempel & Tesar architekti is rooted in the mindset of the principals pre-existing the post-pandemic economic and energy crisis. The house that opens to the sun reflects the natural and responsible approach to life and respect for nature, which must be protected. Thus the fan-shaped house opens to the sun's rays from morning to evening, absorbs its energy and uses it intelligently. On the other hand, thanks to the overhang of the roof-terrace and the shutters built into the double-glazing of the triple-glazed windows, overheating in summer is avoided


Lighting, heat, soil and water. A house that opens to the sun while reflecting the ecological lifestyle of its inhabitants
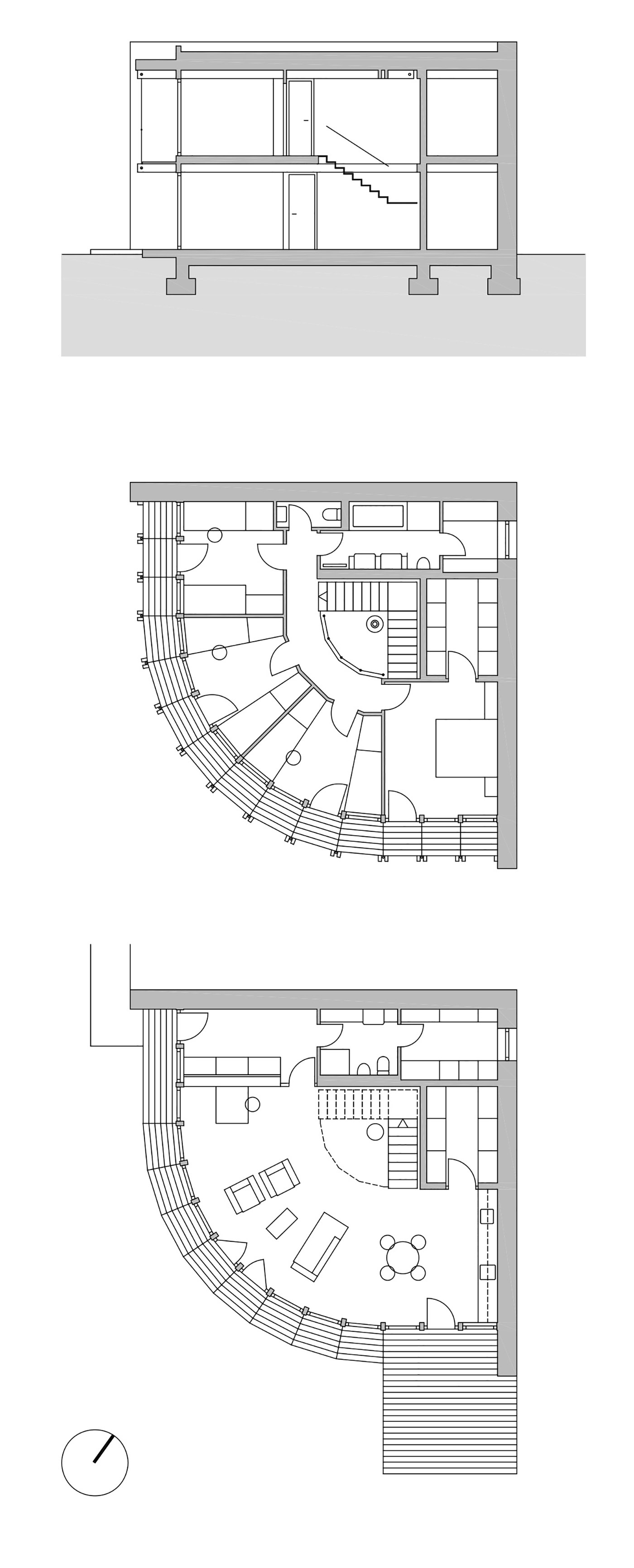
On the outskirts of the town of MaléKyšice near the forests of Křivoklát in the Czech Republic, a house made of wood, glass, and concrete personifies the forward-looking ecological vocation of its inhabitants: a house that opens up to the sun and, like every living organism in nature, transforms it into vital energy
- #Europe>
- #Czech Republic>
- #Architectures>
- #New construction>
- #Residence>
- #Villa>
- #Wood>
- #Architecture>

The building's self-sufficiency for winter heating is further aided by a stove with a heat exchanger positioned in the heart of the house. A staircase winding around the stove leads to the bedrooms located above the living room. The house is also built mainly of wood, which is a renewable material. The construction of the building reveals construction principles in the details, such as steel joints and tie rods, and integrated furniture is placed between the wooden beams making the rooms resemble cabins on a ship

The windward sides of the building are protected by concrete block walls. An insulated sandwich wall helps natural heat storage while promoting building stability. All technical and service compartments such as bathrooms are concentrated along these solid walls, creating a balance zone between the southern and northern sides of the building

A small pond optimizes the use of rainwater; the retention of surface water in the garden pleasantly influences the microclimate in the immediate vicinity of the building. The property does not release wastewater to local sewers-all water is used at least twice. The house takes a similar approach to air by using warm air recovery from outside during the winter months. A prefabricated cellar made of recycled plastic is buried under the garden

Gallery
Photo credits
Top image, content and gallery images: Filip Šlapal
Drawings: Stempel Tesar architekti
Companies credits
Thimberdesign: woodenstructure
Windows: Okna EU
Firetube: FireTube
Chair: Masters Kartell
Lighting: Bloom - Ligne Roset
Vypínače FutureLinear, ABB

















