La natura ecologica dell'edificio progettato da Stempel & Tesar architekti affonda le sue radici nella mentalità dei committenti pre-esistente alla crisi economica post-pandemia e a quella energetica. La casa che si apre al sole rispecchia l’approccio naturale e responsabile per la vita e il rispetto per la natura, che deve essere protetta. Così l’abitazione, con la sua forma a ventaglio, si apre ai raggi del sole dalla mattina alla sera, ne assorbe l’energia e la utilizza in maniera intelligente. Grazie allo sbalzo del tetto-terrazzo e alle persiane integrate nel vetrocamera delle finestre a triplo-vetro si evita invece il surriscaldamento estivo


Luce, calore, terra e acqua. Una casa che si apre al sole riflettendo lo stile di vita ecologico dei suoi abitanti
Ai margini della città di MaléKyšice vicino ai boschi di Křivoklát, nella Repubblica Ceca, una casa in legno, vetro e cemento impersonifica la vocazione ecologica lungimirante dei suoi abitanti: una casa che si apre al sole e, come ogni organismo vivente in natura, lo trasforma in energia vitale
- #Europa>
- #Repubblica Ceca>
- #Architettura>
- #Nuova costruzione>
- #Residenza>
- #Villa>
- #Legno>
- #Architettura>

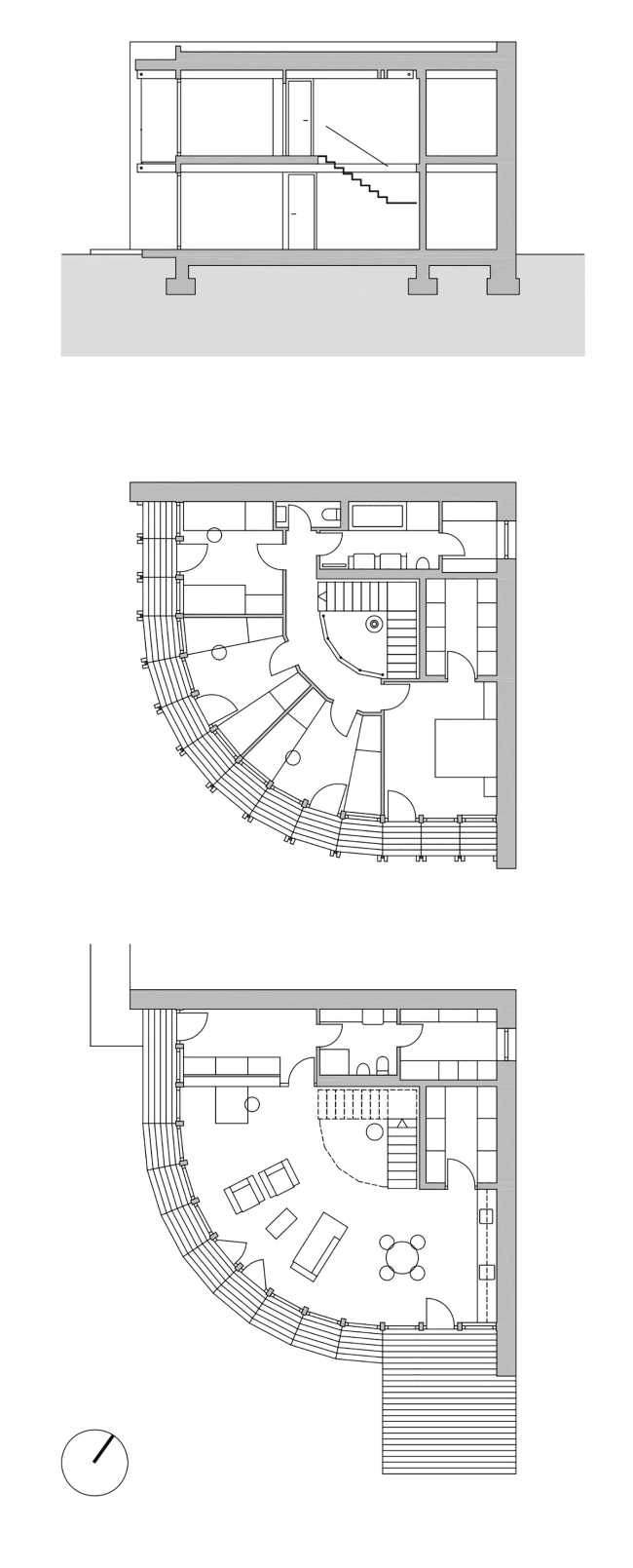
L'autosufficienza dell'edificio per il riscaldamento invernale è ulteriormente aiutata da una stufa con uno scambiatore di calore posizionata nel cuore della casa. Una scala che si snoda intorno alla stufa conduce alle camere da letto situate sopra il soggiorno. L’abitazione è inoltre costruita principalmente in legno che è un materiale rinnovabile. La costruzione dell'edificio rivela i principi costruttivi nei dettagli, come i giunti in acciaio e i tiranti, e gli arredi integrati sono posizionati tra le travi in legno facendo assomigliare le camere a cabine di una nave

I lati sopravento dell'edificio sono protetti da muri in blocchi di cemento. Una parete sandwich isolata aiuta l'accumulo naturale di calore, promuovendo allo stesso tempo la stabilità dell'edificio. Tutti i vani tecnici e di servizio come i bagni sono concentrati lungo queste solide pareti creando una zona di equilibrio tra i lati meridionale e settentrionale dell'edificio

Un piccolo laghetto ottimizza l'uso dell'acqua piovana, la ritenzione delle acque di superficie nel giardino influenza piacevolmente il microclima nelle immediate vicinanze dell'edificio. La proprietà non rilascia acque reflue nelle fogne locali - tutta l'acqua viene utilizzata almeno due volte. La casa adotta un approccio simile all'aria utilizzando il recupero di aria calda dall'esterno durante i mesi invernali. Sotto il giardino è sepolta una cantina prefabbricata in plastica riciclata

Gallery
Credits foto
Immagine di copertina, immagini articolo e gallery: Filip Šlapal
Disegni: Stempel Tesar architekti
Credits Aziende
Thimberdesign: woodenstructure
Windows: Okna EU
Firetube: FireTube
Chair: Masters Kartell
Lighting: Bloom - Ligne Roset
Vypínače FutureLinear, ABB

















