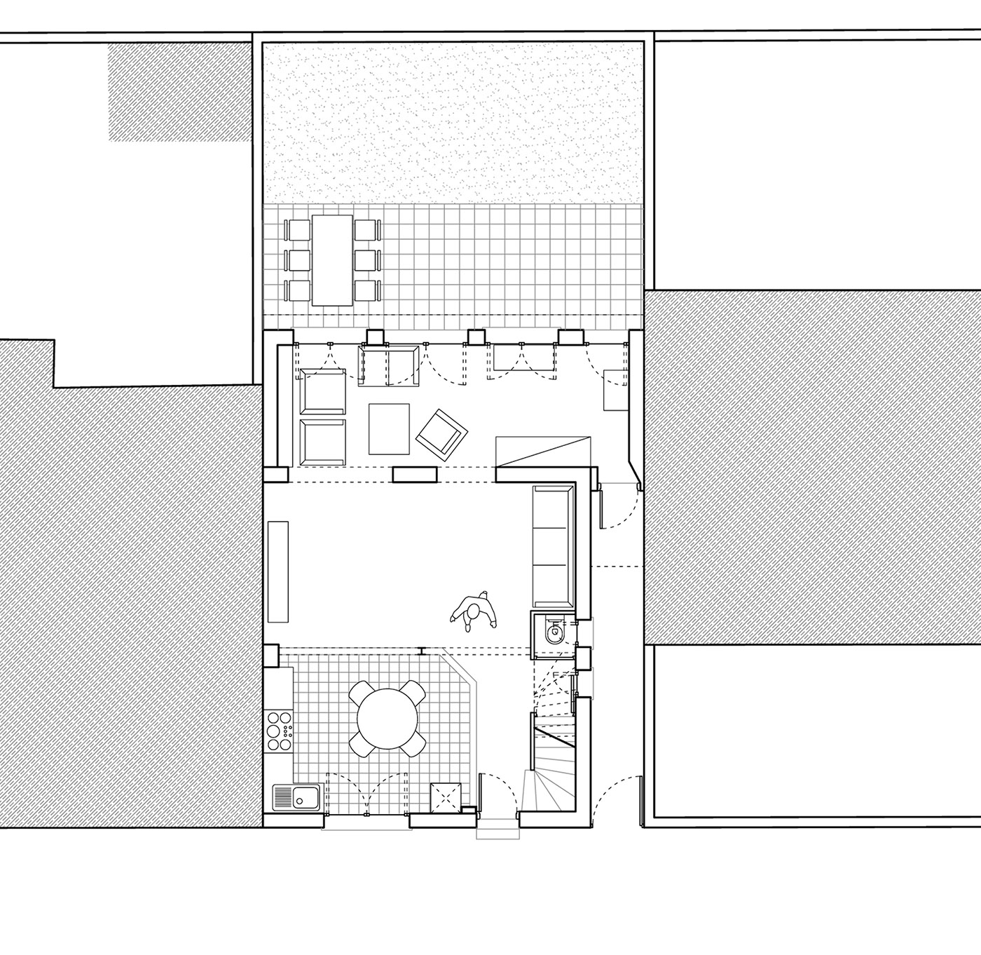
The home already had a comfortable social space on the ground floor, which was extended toward the garden at the time of purchase. In the meantime, the children have grown up, and now the designers of OVERCODE architecture urbanisme are called in to solve the submerged need for additional or necessary space to comfortably accommodate everyone with the right amount of privacy


SPINTO (POUSSé) in high rise. An extension of a family home for more intimacy and comfort
SPINTO (POUSSé) is the project to enlarge the house in which a couple with two children have been living for 5 years in Montrouge
- #Europe>
- #France>
- #Architectures>
- #Building recovery>
- #Residence>
- #Habitation>
- #Building extension>
- #Restyling>
- #Renovation>

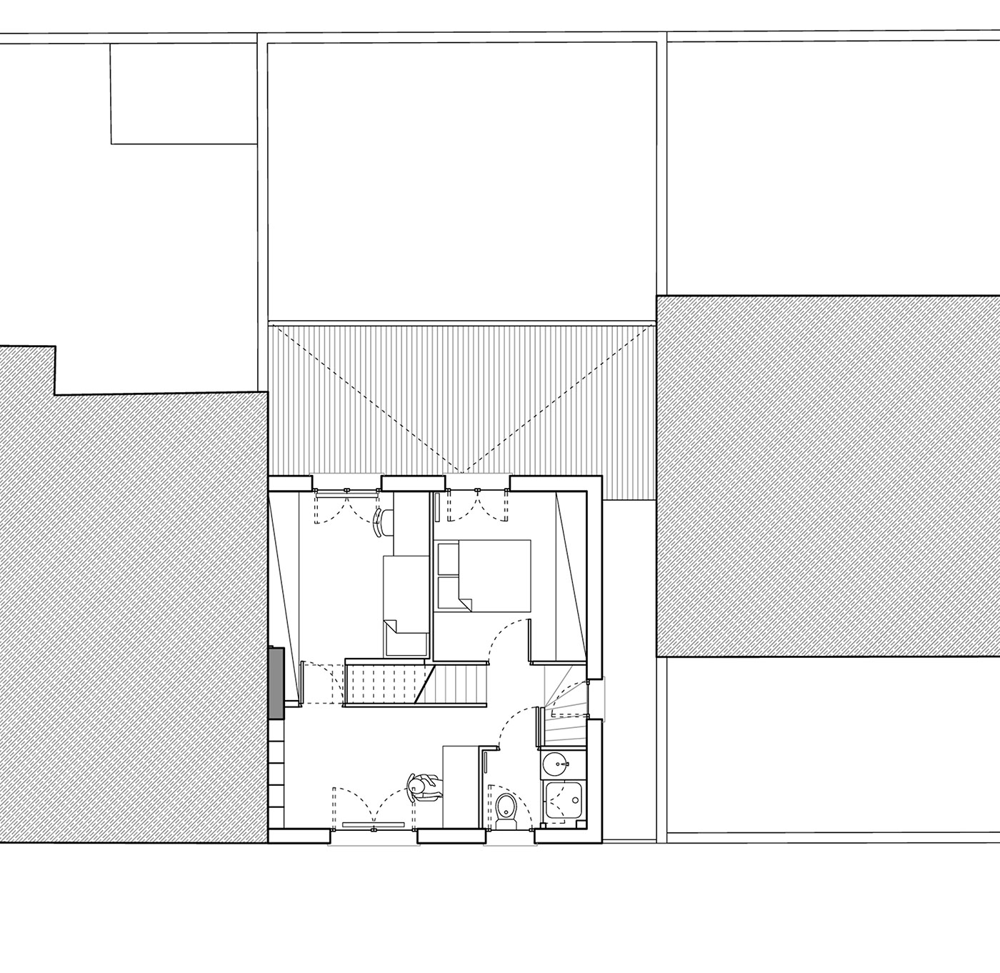
The renovation project aims to explore and enhance the quantities and qualities available to the house. The existing house was built with different construction methods: the south facade in brick, the east and north facades finished in plaster. The architects, through a very pragmatic reading of building laws, decide to extend the house vertically, reaching the maximum height allowed

The roof is kept as a symbol of a listed building, the generous height of the existing levels (3m) was kept as a reference unit for the extension as well. The strategic placement of the stairwell in the center of the house creates a sequence of semi-private and private spaces and fluidly connects the extension with the existing

Gallery
Photo credits
Top image: David Foessel
Content Images: 1, 2 David Foessel
Gallery images: da 1 a 5 David Foessel
Drawings: OVERCODE architecture urbanisme












