L’abitazione aveva già un comodo spazio sociale al piano terra, che è stato esteso verso il giardino nel momento dell’acquisto. Nel frattempo i bambini sono cresciuti e oggi vengono chiamati i progettisti di OVERCODE architecture urbanisme per risolvere la subentrata necessità di spazio aggiuntivo o necessario per ospitare comodamente tutti con il giusto grado di intimità


SPINTO (POUSSé) in altezza. Ampliamento di una casa di famiglia per maggiore intimità e comodità
SPINTO (POUSSé) è il progetto per ingrandire la casa in cui una coppia con due figli vive da 5 anni a Montrouge
- #Europa>
- #Francia>
- #Architettura>
- #Recupero edilizio>
- #Residenza>
- #Abitazione>
- #Ampliamento edificio>
- #Restyling>
- #Ristrutturazione>

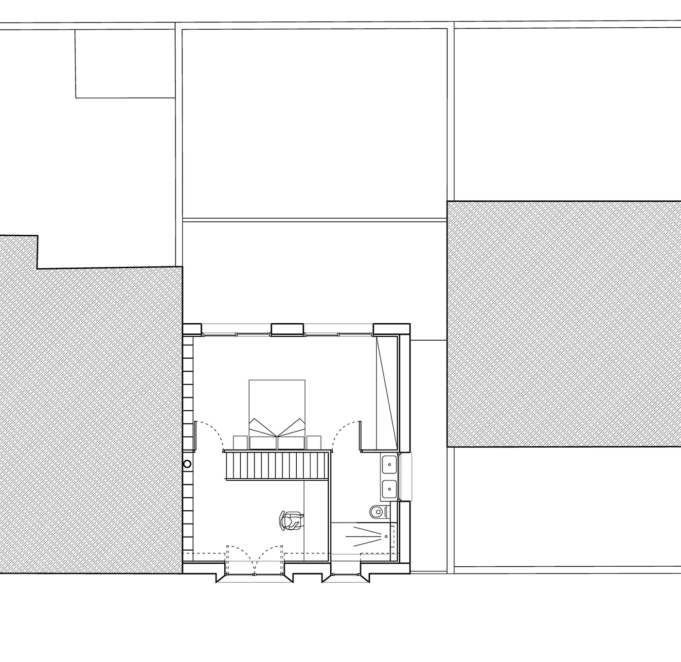
Il progetto di ristrutturazione si propone di esplorare e valorizzare le quantità e le qualità a disposizione della casa. La casa esistente è stata costruita con diversi metodi costruttivi: la facciata sud in mattoni, le facciate est e nord finite ad in intonaco. Gli architetti, attraverso una lettura molto pragmatica delle leggi edilizie, decidono di estendere verticalmente la casa raggiungendo l'altezza massima consentita

Il tetto viene mantenuto come simbolo di un edificio classificato come patrimonio storico, l'altezza generosa dei livelli esistenti (3m) è stata tenuta come unità di riferimento anche per l'ampliamento. Il posizionamento strategico del vano scala al centro della casa crea una sequenza di spazi semi-privati e privati e collega fluidamente l'ampliamento con l'esistente

Gallery
Credits foto
Immagine di copertina: David Foessel
Immagini articolo: 1, 2 David Foessel
Immagini gallery: da 1 a 5 David Foessel
Disegni: OVERCODE architecture urbanisme












