The former apartment of 90 square meters had been divided into 6 rooms making it look dark without almost being connected to the outside space. The new owners, having understood the potential of its sunny inner courtyard which is covered with ivy screws, decided to transform it into a bright and open space and create a semi-external garden to overcome the lack of an external space


Garden gallery in Barcelona. The space opens onto the courtyard and creates light effects
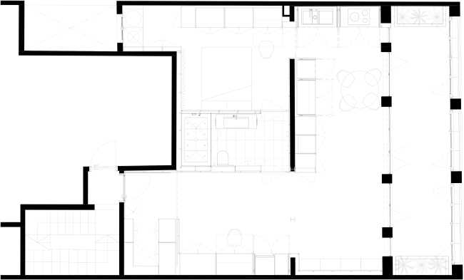
Ylab studio inaugurates the apartment during Barcelona Design Week 2018. It is a renovation in the old Gracia district of Barcelona, where the focus of the project was to restore light to the spaces by creating a gallery overlooking the courtyard
- #Europe>
- #Spain>
- #Apartment>
- #Interior>
- #Restyling>
- #Glass>
- #Wood>
- #Architectures>
- #Interior Design>

The Studio proposed a concept that frees up space through various structural changes, opening the façade to the inner courtyard and recovering the historic gallery. The new layout revolves around an open central L-shaped space connected to the inner courtyard garden

The layout concept is developed by segregating the classic functions into different subzones, more suited to the specific way of life of the owners. The suite of the couple, equipped with large furniture made of natural wood is located in the inner area and has its own bathroom that can be accessed through a second door from the common area

The kitchen-dining room is divided into four sub-areas, the kitchen and washing areas, the breakfast area, with a concealed space for small kitchen appliances and a removable worktop and the cellar/bar area in a third closet closer to the living room. All these areas revolve around this central space, furnished with flexible mobile units such as the dining table and deck chairs, which complement each other

The living room consists of a single internal area and a semi-external area in the garden-gallery. The apartment provides maximum storage space thanks to the large window on the entire perimeter wall and in place of the partition walls. The oak wood wardrobes alternate with white lacquered wood cladding, which makes it possible to install hinged doors flush with one another or hide the sliding doors and in effect separate the various rooms in a subtle way















