L'ex appartamento di 90 mq, era stato suddiviso in 6 camere dando un aspetto scuro senza quasi essere connesso con lo spazio esterno. I nuovi proprietari, avendo capito le potenzialità del suo cortile interno soleggiato, coperto di viti di edera, hanno deciso di trasformarlo in uno spazio luminoso e aperto e creare un giardino semi-esterno per superare la mancanza di uno spazio esterno


Galleria giardino a Barcellona. Lo spazio si apre sulla corte e crea giochi di luce
Lo studio Ylab inaugura l’appartamento durante la Barcelona Design Week 2018. Si tratta di una ristrutturazione nel vecchio quartiere Gracia di Barcellona, in cui il fulcro del progetto è stato ridare luce agli spazi creando una galleria affacciata sulla corte
- #Europa>
- #Spagna>
- #Appartamento>
- #Interior>
- #Restyling>
- #Vetro>
- #Legno>
- #Architectures>
- #Interior Design>

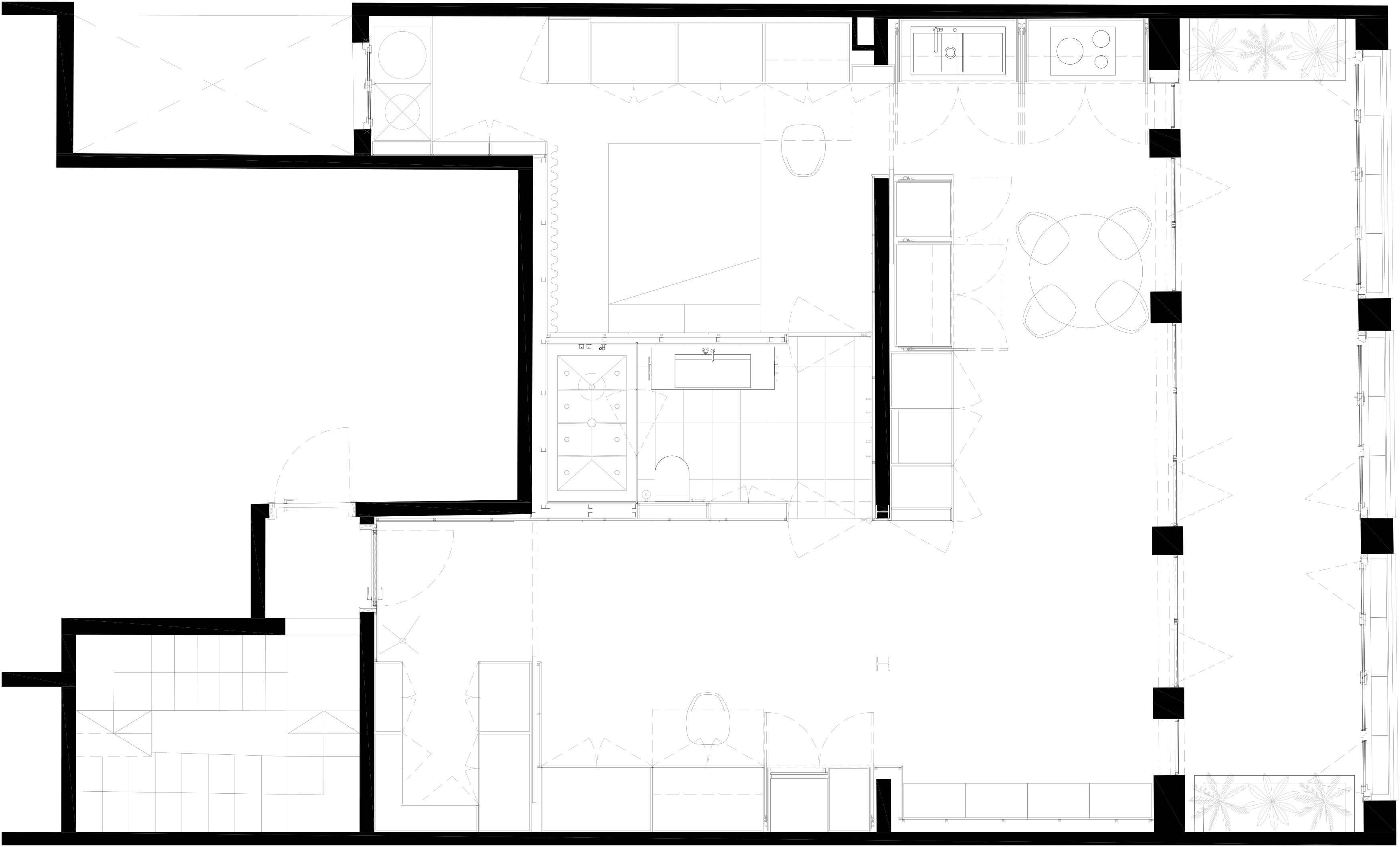
Lo Studio ha proposto un concetto che libera lo spazio attraverso vari cambiamenti strutturali, aprendo la facciata al cortile interno e recuperando la galleria storica. Il nuovo layout ruota intorno a uno spazio centrale aperto a forma di L, collegato al giardino del cortile interno

Il concetto di layout è sviluppato dalla segregazione delle funzioni classiche in diverse sottozone, più consone al particolare modo di vivere dei proprietari. La suite della coppia, dotata di grandi mobili in legno naturale, è collocata nella zona interna ed ha il proprio bagno a cui si può accedere attraverso una seconda porta dall'area comune

La cucina-sala da pranzo viene suddivisa in quattro sottozone, la cucina e le zone di lavaggio, la zona colazione, con spazio nascosti per piccoli elettrodomestici da cucina e un piano di lavoro rimovibile e la cantina / zona bar, in un terzo armadio più vicino al soggiorno. Tutte queste zone ruotano intorno a questo spazio centrale, arredato con isole mobili flessibili, come il tavolo da pranzo e le sedie a sdraio, che si completano a vicenda

Il soggiorno è composto da una zona unica interna e da una zona semi-esterna nel giardino-galleria. L'appartamento raggiunge il massimo spazio di archiviazione grazie all'ampia vetrina a tutta parete perimetrale e in sostituzione delle pareti divisorie. Gli armadi in legno di quercia si alternano a rivestimenti in legno laccato bianco, che consentono un'installazione a filo delle porte a battente o nascondono le porte scorrevoli, e in effetti separano i diversi ambienti in modo sottile















