Earthy red Viroc elevations, mirroring the brickwork of existing Victorian buildings, characterize the auditorium dubbed the David Brownlow Theatre, by Jonathan Tuckey Design built to complement an existing historic complex. Materiality and structure are consciously distinguished: the building represents the school's contemporary sustainable ambition while respecting and acknowledging the past


A desire for sustainability that does not neglect tradition in the David Brownlow Theatre
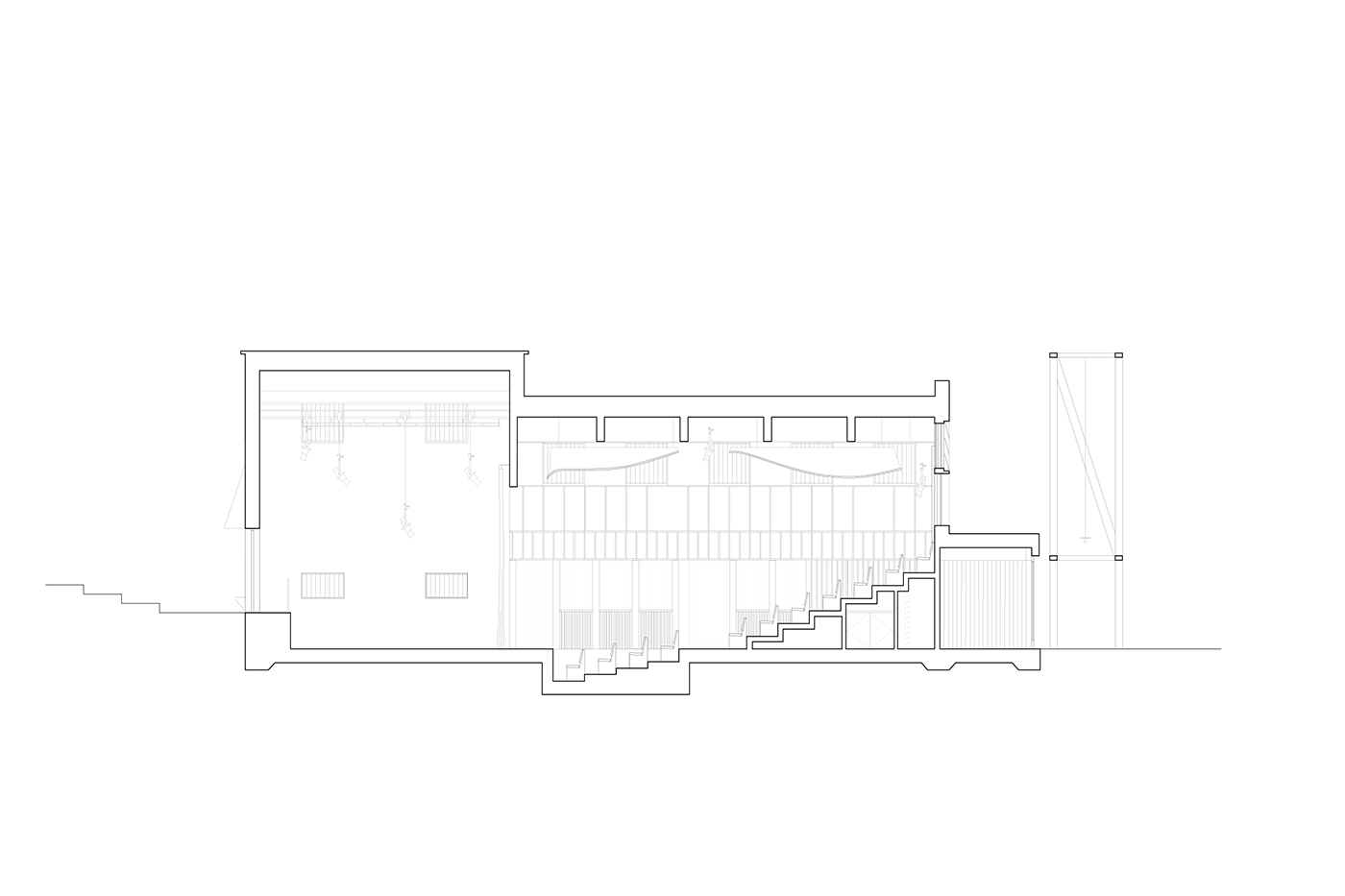
The 160-seat auditorium, designed at Horris Hill School in southeast England, complements the school's existing campus-a sustainable building rich in historical references
- #Europe>
- #United Kingdom>
- #Architectures>
- #New construction>
- #Auditorium>
- #Wood>
- #Architectures>
- #Architecture>

Designed to host school assemblies, musicals and theater productions, the space was divided into three parts. A civic plaza in front of the entrance porch, the auditorium proper, and finally an open-air amphitheater in the back. The permeability of movement between indoor and outdoor spaces creates an inclusive and social building that encourages pupils to collaborate and play

The Viroc was machine-cut off-site to reduce waste and assembled by hand as a single joinery item. The design is innovative in its assembly. The interior is minimal and efficient: the dark blue undulating ceiling echoing the night sky and the black Glossy din Viros floor. The cross-laminated timber structure is chosen for its economy and to reduce construction time on site

The design draws inspiration from Christine Boyer's book, The City of Collective Memory, from her statement that the theater will be a stage for everyday life. The design borrows historical motifs such as the standing stalls of the Tudor theater, the proscenium and colonnade of the classical theater, and motifs from Renaissance ecclesiastical architecture

Gallery
Photo credits
Top image, content and gallery images: Jim Stephenson and Nick Dearden


















