Prospetti Viroc rosso terroso, che rispecchiamo la muratura in mattoni degli edifici vittoriani esistenti, caratterizzano l'auditorium soprannominato David Brownlow Theatre, di Jonathan Tuckey Design realizzato a completamento di un complesso storico esistente. Materialità e struttura vengono consapevolmente distinte: l'edificio rappresenta l'ambizione sostenibile contemporanea della scuola, pur rispettando e riconoscendo il passato


Il desiderio di sostenibilità che non trascura la tradizione nel David Brownlow Theatre
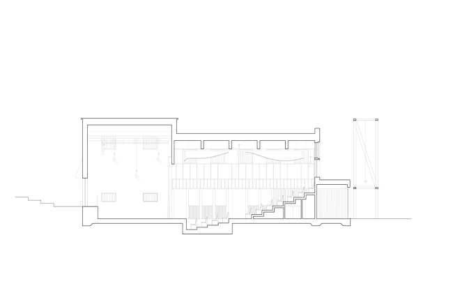
L'auditorium di 160 posti, progettato nella Horris Hill School nel sud-est dell'Inghilterra, completa il campus già esistente della scuola: un edificio sostenibile ricco di riferimenti storici
- #Europa>
- #Gran Bretagna>
- #Architettura>
- #Nuova costruzione>
- #Auditorium>
- #Legno>
- #Architectures>
- #Architettura>

Progettato per ospitare assemblee scolastiche, musical e produzioni teatrali, lo spazio è stato suddiviso in tre parti. Una piazza civica davanti al portico d'ingresso, l'auditorium vero e proprio e infine un anfiteatro all'aperto sul retro. La permeabilità del movimento tra spazi interni ed esterni crea un edificio inclusivo e sociale che incoraggia gli alunni a collaborare e giocare

Il Viroc è stato tagliato a macchina fuori sede per ridurre gli sprechi e assemblato a mano come un unico oggetto di falegnameria. Il design è innovativo nell'assemblamento. L'interno è minimal ed efficente: il soffitto ondulato blu scuro che richiama il cielo notturno e il pavimento din Viros nero Lucido. La struttura in legno lamellare incrociato viene scelta per la sua economicità e per ridurre i tempi di costruzione in cantiere

Il progetto trae ispirazione dal libro di Christine Boyer, The City of Collective Memory, dalla sua affermazione che il teatro sarà un palcoscenico per la vita di tutti i giorni. Il design prende in prestito motivi storici come gli stalli in piedi del teatro Tudor, il boccascena e il colonnato del teatro classico, nonché motivi dell'architettura ecclesiastica rinascimentale

Gallery
Foto credits
Immagine di copertina, immagine articolo e gallery: Jim Stephenson and Nick Dearden


















