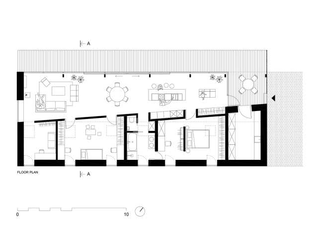
Fun and quality of life at the center of the architectural project
Located in the Pavilnys Regional Park in Vilnius, this humble and practical house offers a sense of richness beyond materiality: pure comfort, fun, and quality of life. The commitment of the architecture projects and design studio DO Architects in this project was to connect but at the same time separate the private residences of the Family House from the shared spaces.
















