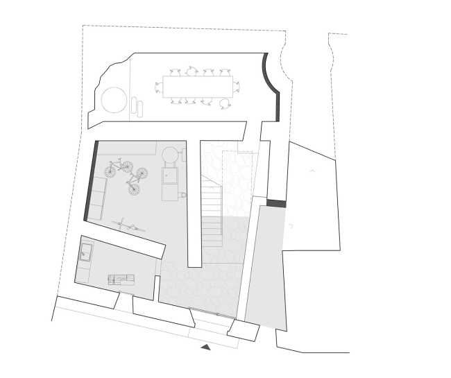
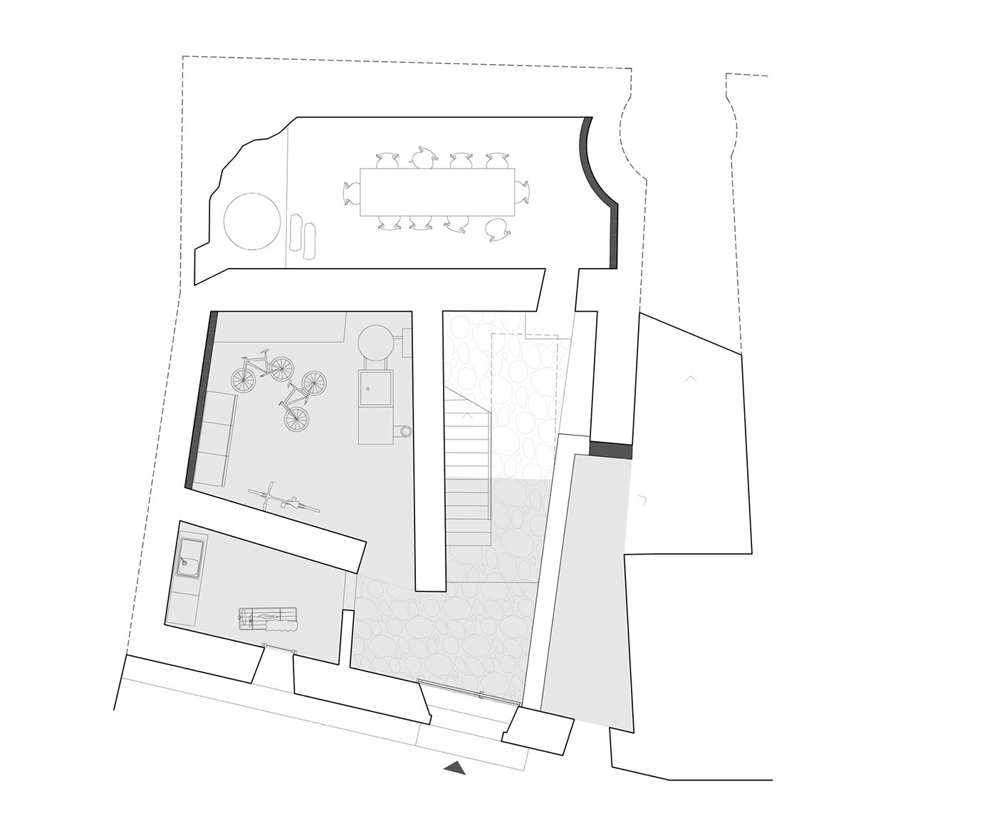
Arqbag's renovation initiative
Declared a cultural asset of local interest (BCIL), the Fuster House is made habitable again thanks to Arqbag's renovation project, which proposes a minimal and simple structural system to feed the shortcomings of the pre-existing building in order to prolong its life. It consists of a lightweight reinforced concrete box that is supported directly on the load-bearing stone walls of the basement, avoiding the need for a new foundation. These reinforced concrete nerves connect the four existing facades from the inside, reabsorbing existing collapses and reducing the deformation of the walls by fixing them from their midpoint























