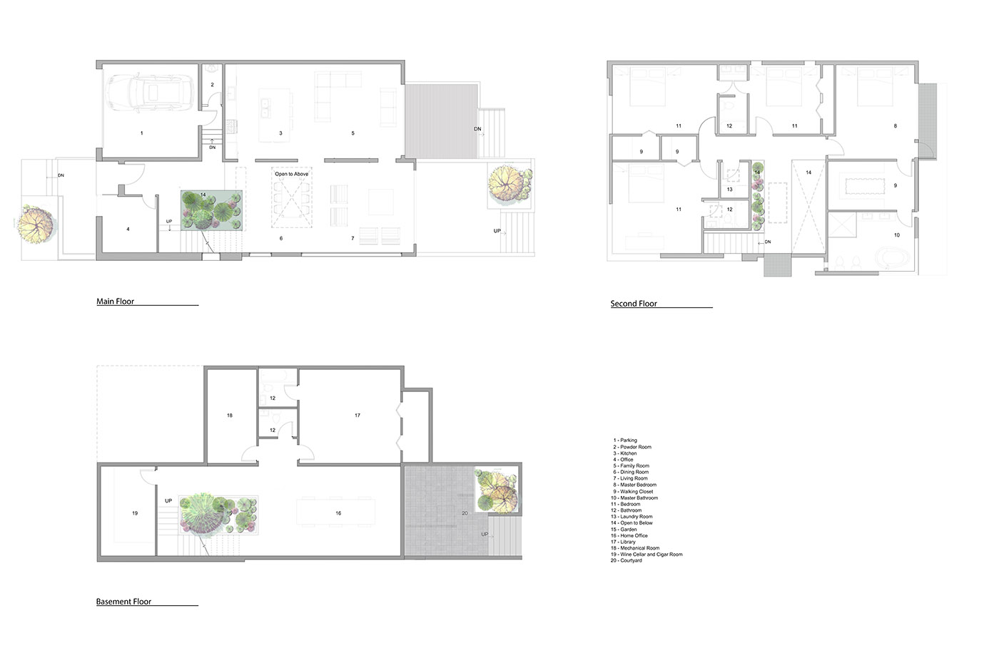
The house is spread over two floors, with five bedrooms, an office in the basement, a kitchen with a dining room and a garage. The windows are large and narrow, ensuring that the interior is well lit during the day


Modern home combines design and functionality. Simple lines combined with natural and refined materials
Garden Void House, a single-family home located in Toronto and designed by Alva Roy Architects has a garden inside, an oasis that starts in the basement and develops through the empty space of the house

The house is spread over two floors, with five bedrooms, an office in the basement, a kitchen with a dining room and a garage. The windows are large and narrow, ensuring that the interior is well lit during the day

Architecturally, the building has a complex relationship between the mass and the void. The white interior surfaces contrast with the exterior surfaces, creating a quiet living space. The main materials are natural stone and wood

The simple lines and the combination of wide and narrow windows in the upper part of the building capture the attention of passers-by, allowing the building to interact with the surrounding residential neighbourhood. The garden is located inside the house, reinterpreting the tradition of having a garden all around the house
Gallery
Article by Giulia Schellino
Photo: Tom Arban

















