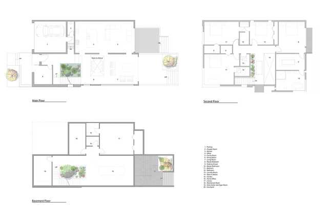
La casa si distribuisce su due piani, con cinque camere da letto, un ufficio nel seminterrato, una cucina con una sala da pranzo e un garage. Le finestre sono ampie e strette, e permettono la giusta illuminazione degli interni durante il giorno


Casa moderna coniuga design e funzionalità. Linee semplici unite a materiali naturali e raffinati
Garden Void House, residenza unifamiliare situata a Toronto e progettata dallo studio Alva Roy Architects, prevede un giardino al suo interno, un'oasi che inizia al piano seminterrato e si sviluppa attraverso lo spazio vuoto della casa

The house is spread over two floors, with five bedrooms, an office in the basement, a kitchen with a dining room and a garage. The windows are large and narrow, ensuring that the interior is well lit during the day

A livello architettonico, la costruzione prevede un complesso rapporto tra massa e vuoto. Le superfici interne, di colore bianco, contrastano con quelle esterne, creando un nucleo abitativo tranquillo. I materiali principe sono le pietre naturali e il legno

Le linee semplici e il gioco di finestre ampie e strette in elevazione catturano l'attenzione del passante, permettendo all'edificio di interagire con il quartiere residenziale circostante. Il giardino si trova all'interno della casa, reinterpretando la tradizione che vede il giardino tutt'attorno alla casa
Gallery
Articolo di Giulia Schellino
Foto: Tom Arban

















