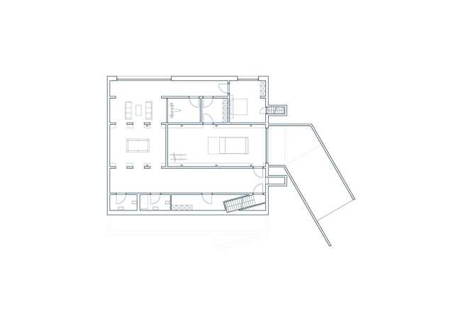
House B7 was designed by VLOT architecten as a composition of two volumes whose orientation was determined by the shape of the landscape and the relationship the house was desired to have with it: the volume housing the sleeping area and services follows the lines of the land, while the volume of the living area runs parallel to the country road. The result is an L-shape that creates a pleasant sheltered outdoor space


Tranquility, spaciousness and views in House B7 made of zinc and wood
Tranquility, spaciousness and views in the House B7 made of zinc and wood.
In the rural village of Brandwijk in the Netherlands, in place of the old stable now stands House B7 from which one can enjoy the spatial qualities of the place
- #Europe>
- #Netherlands>
- #Architectures>
- #New construction>
- #Residence>
- #Habitation>
- #Architecture>

The slightly enlarged former manure pit of the barn was used as an excavation for the new building. Because of this special foundation, a lightweight structure consisting of a prefabricated wood frame had to be built. Facades and roof are clad in zinc panels combined with a wood siding. The house was designed ideally following a 40-cm grid: the zinc sheet has a custom width of 40 cm, the wooden boards are 9 cm plus 1 space

The windows also respond to the ideal grid by following a dimension that is multiple of the base module and have a square shape. They were strategically placed to frame specific views of the landscape. The living room and dining room relate to the landscape in a different way: two identical 6 m wide horizontal openings allow the gaze to pierce through the house, which here relates to both sides of the surrounding countryside

Gallery
Photo credits
Top image, content and gallery images: VLOT architecten

















