Completed in 2020 and located in a busy and cluttered northern suburb of Hyderabad, Myst Salon and Spa offers an inviting experience for the client away from the hustle and bustle: an escape to take time for oneself and to enjoy the afternoon tea


Myst Salon and Spa, from the tradition of the first Indian barber shops, a wellness experience among the foliage and the design
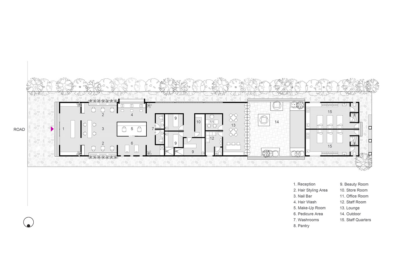
In the history of Hyderabad in India, the first barbers hung mirrors in the trees and pampered their clients in the shade: the design of the Myst Salon and Spa is inspired by this rural image, enhancing the surrounding nature and bringing it into the interior of this oasis of relaxation with a play of transparencies and reflections

Myst treats hairstyling as a creative discipline, incorporating simplicity and grace into its work. The aim of Urban Narratives' project was to translate the client's philosophy into tangible concepts by highlighting it in various aspects of the design: a concrete floor that joins precious marbles, portrays the concept of utilitarian function combined with elegance; the choice to make Myst Salon and Spa a cosy and intimate space, by dedicating part of the building space to the vegetation with which the project is ideally and visually intertwined and it highlights ethical and aesthetic sensitivity

The main entrance, framed by steel, is designed to inspire "landscape breaks", allowing the salon's clients a gradual transition from the chaos of the outside world to the promise of well-being they are about to indulge in. Inside the salon, the design of private and semi-private spaces is done by alternating grooved and flat glass. The colour palette is simple: black furniture, white fixtures, and the different shades of green in the garden captured by the art pieces displayed inside

Birds of Paradise, Lilies of Peace and lush Monsteras make their appearance in the murals which were inspired by a study of Henri Matisse's work, overlooking the seating areas which reflect the interior planters. The architects of Urban Narratives embellished the outdoor space with Raphy, the plumeria and Reca palms alternated with Tanabebuia roses to add a feminine tone to the reverence of our design.
After the salon experience, the clients can go outside to enjoy the outdoors through the rotating glass panels that shape the back wall of the building

Gallery
Photo credits
Top image, content and gallery images: Akshay Admiulam

















