Linear Aesthetics and Dematerialized Boundaries
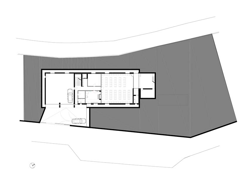
Studio Gerosa, which deals with engineering and architecture projects, design, and urban planning, is commissioned by the client to create a single-level villa with a service basement. Casa in Brianza nestles on the elongated lot with its linear and clean aesthetics, dematerialized boundaries welcoming the outdoors, and a solid perimeter structure, the only load-bearing one, anchoring it to the ground























