The structure undergoing the building renovation carried out by the architect Andrea Stortoni in collaboration with the architect Michela Kumka is located in the Marche region in the province of Macerata in Montelupone along Via Roma, one of the main streets of the village, in front of the imposing church of San Francesco and the adjoining convent complex


Recovery of a medieval building in the Marche region. Evolution with respect to tradition
The structure, a building of medieval origin located in Montelupone in the Marches, which has been subject to various changes in use over time, is the focus of renovation work by the architect Andrea Stortoni, in collaboration with the architect Michela Kumka
- #Europe>
- #Italy>
- #Habitation>
- #Wood>
- #Glass>
- #Plaster>
- #Architectures>
- #Architecture>

Before the renovation works, the building was used as a workshop on the ground floor, initially as a blacksmith's workshop, then as a shoemaker's workshop and as a residence on the upper floors

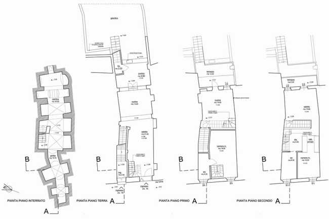
In the basement there is a cave typical of the buildings of the time, it was used as a "quarry" of material to make the bricks of the building above and were later transformed into a place for storage and food preservation or as tanks for collecting water

In the building renovation works all the historical characteristics of the building were respected, that's why the designers opted for a replacement of the floors by restoring them as they had originally been, with wooden beams. The load-bearing masonry was maintained by inserting metal elements where necessary. The structural typology, the holes, the use of materials, have been respected as much as possible, while maintaining the stability and conformity of the systems

In the internal layout, the original spaces have been maintained, by rotating one of the staircases connecting the inside, obtaining a better use of the rooms compared to the previous layout, given that the request was to obtain two distinct and independent housing units

The first unit includes the underground caves, the former laboratory on the ground floor for the living area and part of the first floor, where it was converted into a double bedroom with a bathroom. The second unit instead consists of the remaining part of the first floor, the second floor, intended for the sleeping area and the attic

Architects Andrea Stortoni and Michela Kumka succeeded in transforming the building by giving the housing units direct access to a private courtyard with a garden. The renovation of a medieval building located in the heart of the village is a restoration for residential purposes, which respects the historical tradition and is developed following an optimal solar orientation by providing a view of the garden from the kitchens and living areas and a view of the street from the rooms and bathrooms


















