L’edificio oggetto della ristrutturazione edilizia effettuata dall’Architetto Andrea Stortoni, in collaborazione con l'Architetto Michela Kumka, si trova nelle Marche, in provincia di Macerata a Montelupone, lungo via Roma, una delle principali del Borgo, di fronte all’imponente chiesa di San Francesco e dell'annesso complesso conventuale


Recupero di un edificio Medievale nelle Marche. Evoluzione nel rispetto della tradizione
Il fabbricato, edificio di origine medievale, situato a Montelupone nelle Marche, soggetto nel tempo a diversi cambi d'uso, è oggetto dei lavori di ristrutturazione dell’Architetto Andrea Stortoni, in collaborazione con l'Architetto Michela Kumka
- #Europa>
- #Italia>
- #Abitazione>
- #Legno>
- #Vetro>
- #Intonaco>
- #Architectures>
- #Architettura>

Prima dei lavori di restauro, l'immobile veniva usato come laboratorio artigianale al piano terra, prima officina di un fabbro, poi bottega di un calzolaio, e come abitazione ai piani superiori

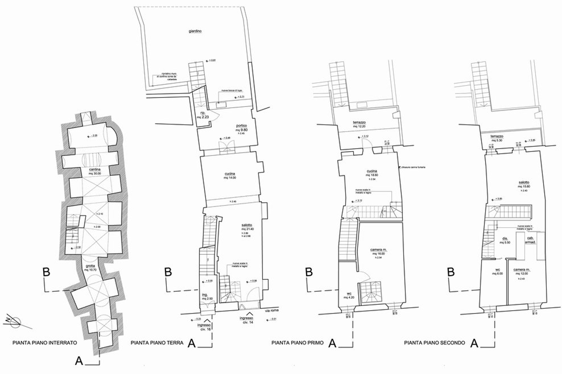
Al piano interrato esiste una grotta tipica dei fabbricati dell'epoca, veniva usata come "cava" di materiale per fabbricare i mattoni dell'edificio soprastante e successivamente sono state trasformate in luoghi di conservazione e stoccaggio alimentari o come cisterne per la raccolta delle acque

Nei lavori di ristrutturazione edilizia sono state rispettate tutte le caratteristiche storiche dell'immobile, ecco perchè i progettisti hanno optato optato per una sostituzione dei solai ripristinandoli come erano in origine, con travi in legno. La muratura portante è stata mantenuta inserendo, ove necessario, elementi metallici. La tipologia strutturale, le bucature, l'uso dei materiali, sono stati rispettati il più possibile, pur garantendo la staticità e la conformità degli impianti

Nella distribuzione interna sono stati mantenuti gli spazi originari, ruotando una delle rampe di scale di collegamento interne ottenendo una migliore fruizione degli ambienti rispetto alla precedente distribuzione, dato che la richiesta era quella di ricavare due unità abitative distinte ed indipendenti

Nella prima unità sono comprese le grotte interrate, l'ex laboratorio al piano terra destinato alla zona giorno, e parte del primo piano, dove è stata ricavata una camera matrimoniale con bagno. La seconda unità invece è composta dalla restante parte del primo piano , il secondo piano, destinato alla zona notte ed il sottotetto

Gli Architetti Andrea Stortoni e Michela Kumka riescono, nella trasformazione edilizia, a dotare le unità abitative di accesso diretto ad una corte privata con giardino. Il recupero edilizio di un edificio medioevale situato nel cuore del paese rappresenta un recupero ai fini abitativi, che rispetta la tradizione storica e che si sviluppa seguendo un orientamento solare ottimale prevedendo sul giardino gli affacci per le cucine e le zone giorno, e su strada gli affacci di camere e servizi


















