The concept of the project
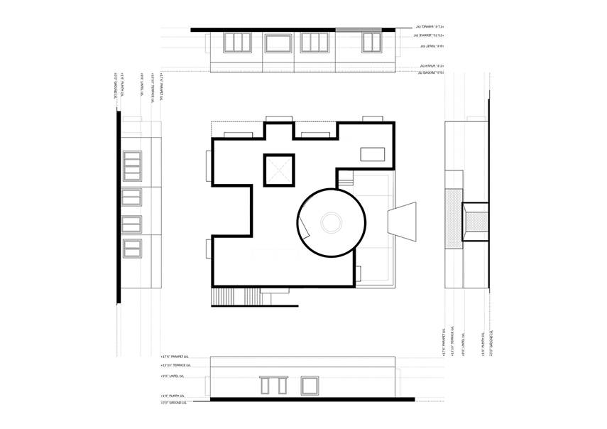
The house designed by RLDA Architects occupies the southern end of a plot measuring 6780m². This placement was determined by considering the topography of the land, the location of an existing tree, and the presence of a previously built driveway along the eastern boundary. The entire project consists of four structures, primarily constructed from brick: a circular guard room, a cuboidal pump room and two residential blocks

























