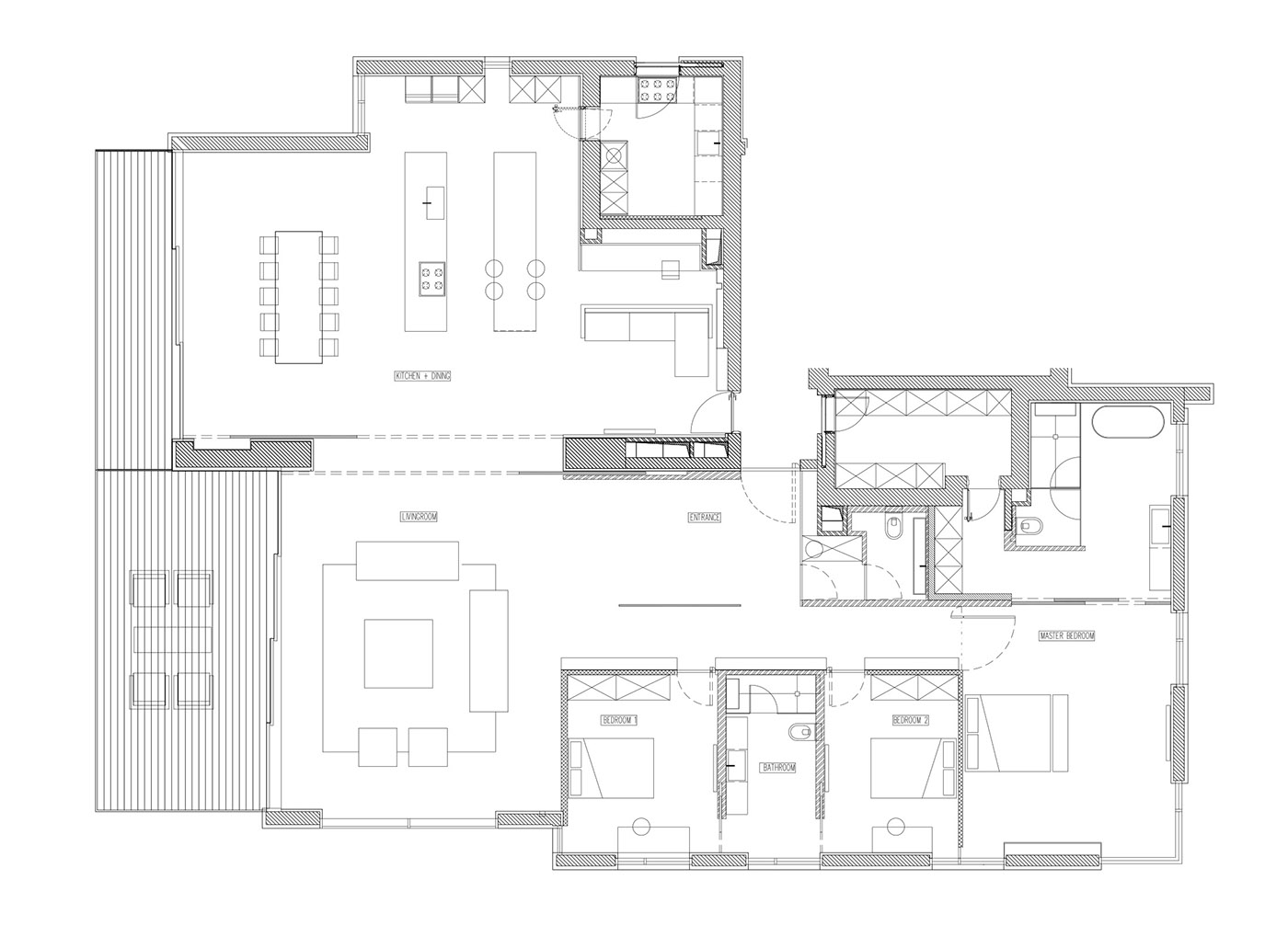
Stretching 300 square meters, the White Screens Apartment, designed by Axelrod Design for a private client, is both a stunning home for a couple and a wonderful space in which to host and entertain family and friends. Upon entering, the eye, guided by the light, is immediately led along the length of the apartment to a view of the sea; the distinctive features of the open floor plan of the wooden floor running westward are immediately shown


White Screens Apartment where one can experience the perceived lightness of being in downtown Tel Aviv
Combining two apartments on the 23rd floor of a building in Tel Aviv in order to create a light, airy and adaptable home to showcase Mediterranean light and sea views to the west: the White Screens Apartment
- #Asia>
- #Israel>
- #Architectures>
- #Residence>
- #Apartment>
- #Restyling>
- #Interior>
- #Design>
- #Interior Design>

The interior division of the White Screens Apartment is seemingly simple. In fact, the public space, which includes the living room, dining room, kitchen, workstation and TV area, is almost completely free of partitions and flows harmoniously through a continuum of open space punctuated by floor-to-ceiling white partitions. Made of lace mesh, the white screens contrast and accentuate the softness of the other materials used. Thanks to the hidden ceiling tracks, the screens can be retracted, retracting them to meet the changing needs and moods of the inhabitants, creating a more intimate environment when needed or opening the space to its fullest extent for parties and large gatherings, or, simply, concealing the kitchen space

Light is undoubtedly the predominant feature of the apartment-sunlight pours in from all directions through vast expanses of glass to present exciting urban vistas; natural light floods into the home's spaces and plays through the lacework of white screens. As one moves through the space, one encounters the huge patio that definitely captures the spirits by offering Mediterranean views, breathtaking sunsets, and an elegant outdoor living room

The renovation then contemplated the placement of the master suite, which follows the decorative theme of white screens, in the southeast corner of the apartment. When the master bedroom door is open, one has a full east-west view of the city and can feel how the light changes from sunrise to sunset. The south wing, on the other hand, houses two bedrooms and a bathroom. The two sleeping areas are barely visible from the living room as each is fronted by a Load-it by Porro bookcase system, which gives a minimalist and relaxing aesthetic. The discreet color palette and elegant reflective materials create feelings of softness and lightness: a space in which to experience the lightness of living

Gallery
Photo credits
Top image, content and gallery images: Amit Geron Photography
Drawings: Axelrod Architects












