Estendendosi 300 mq il White Screens Apartment, progettato da Axelrod Design per un cliente privato, è sia una splendida casa per una coppia che uno spazio meraviglioso in cui ospitare e intrattenere la famiglia e gli amici. Entrando, l'occhio, guidato dalla luce, viene immediatamente condotto lungo tutta la lunghezza dell'appartamento fino ad ammirare la vista del mare; si mostrano subito le caratteristiche peculiari della pianta aperta del pavimento in legno che corre verso ovest


White Screens Apartment dove sperimentare la leggerezza dell’essere nel centro di Tel Aviv
L’unione di due appartamenti al 23º piano di un edificio a Tel Aviv, per creare una casa leggera, ariosa e flessibile per mostrare la luce mediterranea e la vista sul mare a ovest: il White Screens Apartment
- #Asia>
- #Israele>
- #Architettura>
- #Residenza>
- #Appartamento>
- #Restyling>
- #Interior>
- #Design>
- #Interior Design>

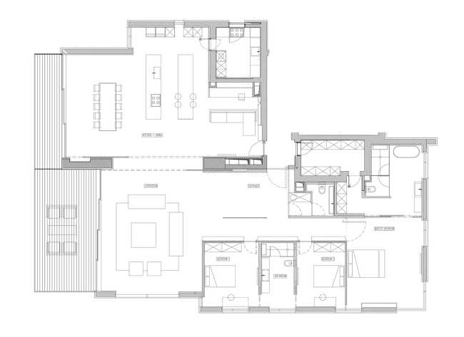
La divisione interna del White Screens Apartment è apparentemente semplice. Infatti, lo spazio pubblico, che comprende il soggiorno, la sala da pranzo, la cucina, la postazione di lavoro e la zona TV, è quasi completamente libero da pareti divisorie e scorre armoniosamente attraverso un continuum di open space punteggiato di divisori bianchi da pavimento a soffitto. Realizzati in rete a merletto, gli schermi bianchi contrastano e accentuano la morbidezza degli altri materiali utilizzati. Grazie ai binari a soffitto nascosti, gli schermi possono essere ritirati, riavvolgendoli, per soddisfare le mutevoli esigenze e gli umori degli abitanti, creando all’occorrenza un ambiente più intimo o aprendo lo spazio alla sua massima estensione per feste e grandi riunioni, oppure, semplicemente, nascondendo lo spazio della cucina

La luce è senza dubbio la caratteristica predominante dell'appartamento - la luce del sole si riversa da tutte le direzioni attraverso vaste distese di vetro per presentare emozionanti viste urbane; la luce naturale si diffonde negli spazi della casa e gioca attraverso i merletti degli schermi bianchi. Mentre ci si sposta nello spazio si incontra l'enorme patio che cattura definitivamente gli animi offrendo viste sul Mediterraneo, tramonti mozzafiato e un elegante soggiorno all'aperto

L’intervento di ristrutturazione ha contemplato poi la sistemazione della suite padronale, che segue il tema decorativo degli schermi bianchi, nell’angolo sud-est dell'appartamento. Quando la porta della camera da letto principale è aperta, si ha una vista completa da est a ovest della città e si può percepire come la luce cambia dall'alba al tramonto. L'ala sud invece ospita due camere da letto e un bagno. Le due zone notte sono appena visibili dal soggiorno in quanto ciascuna è fronteggiata da un sistema di libreria Load-it by Porro, che regala un'estetica minimalista e rilassante. La tavolozza dei colori discreta e gli eleganti materiali riflettenti creano sensazioni di morbidezza e ariosità: uno spazio in cui sperimentare la leggerezza dell'essere

Gallery
Foto credits
Immagine di copertina, immagini articolo e gallery: Amit Geron Photography
Disegni: Axelrod Architects












