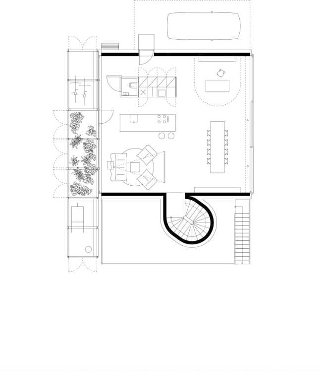
Harmonious integration with surroundings
In Žilina, Slovakia, the villa's surroundings are relatively homogeneous with detached houses that occur interspersed more or less regularly with their gardens. Villa Borik, designed by PLURAL, respects this typical intermittent development and, at the same time, tries to correspond in volume with the surrounding buildings by concealing about one-third of its space in an underground floor























