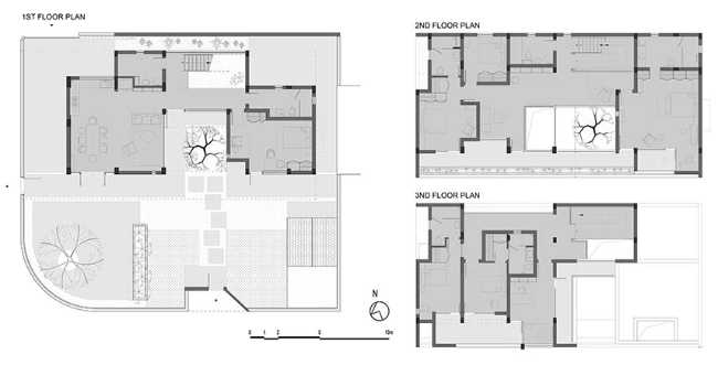
Union between modern lifestyle and oriental atmospheres and nature
It is in the spirit of Atelier LI to create architectural projects that combine the lifestyle of today with oriental atmospheres and the natural environment. Thus, in Villa Pudong, there are three fundamental design principles. Firstly, the "greenery" that already surrounds the house is intertwined with the architecture through internal courtyards at all levels of the building, including the concept of a traditional oriental garden























